
Boxley Road, Penenden Heath, Maidstone
- PROPERTY TYPE
Plot
- SIZE
Ask agent
Description
It is located in the popular and desirable Pendenden Heath area of Maidstone approximately a mile north of the town centre and extends to c. 0.06 hectares (c. 0.15 acres) in size.
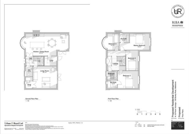
Detailed planning permission was granted by Maidstone Borough Council the 25th November 2022 for the demolition of the existing garage and erection of a detached dwelling with parking and cycle storage under planning reference 22/504715/FULL at the above site. The proposed scheme comprises an attractive 4 bed detached house that extends to c. 208 m2 (c. 2,238 sqft) in size.
Location - The site is located in the popular and desirable Pendenden Heath area of Maidstone approximately a mile north of the town centre. Maidstone is the county town of Kent and provides a full range of shops and services. The town has a number of excellent Primary Schools as well as a good range of Comprehensive and Grammar Secondary Schools.
The site is located under a mile from Maidstone East station which provides regular rail services to London Victoria and London Charing Cross with a journey time of just over an hour.
Junction 7 of the M20 motorway is just over a mile to the north east and provides quick and easy access to the M25 to the west and the Coastal towns, Ferries and Channel Tunnel to the east.
Site Desciption - The site extends to c. 0.06 hectares (c. 0.15 acres) in size and is regular in shape. It is formed following the demolition of a single storey single garage and side garden land associated with the existing Rectory.
The site is relatively level and contains and number of mature trees, although these are generally located to the boundary. Boxley Road is predominantly residential in character and the surrounding properties are generally attractive older detached properties on decent sized plots.
Planning - Detailed planning permission was granted by Maidstone Borough Council the 25th November 2022 for the demolition of the existing garage and erection of a detached dwelling with parking and cycle storage under planning reference 22/504715/FULL at the above site. The planning application only has nine conditions, none of which are considered unusual for a site of this nature.
The proposed scheme comprises an attractive 4 bed detached house that is understood to extend to c. 208 m2 (c. 2,238 sqft) in size. The ground floor provides a galleried hallway, leading to a large living room, with a snug/office to the front and patio doors out the rear garden. The hallway also leads to a large kitchen/dining/family room again with rear garden access and a separate utility room. There is also a ground floor WC. The first floor galleried landing leads to four bedrooms, two of which benefit from en-suite facilities and the family bathroom. Externally the property will benefit from a decent sized rear garden and parking for two cars directly in front of the new property. For the avoidance on doubt the other two spaces in front of the property beyond the drive will be retained for use by the existing Rectory.
The driveway will be shared with the existing Rectory and provides two points of access onto Boxley Road and Fintonagh Drive.
Existing Garage Demolition And Fence New Fence Bou - The vendor requires the purchaser to undertake the demolition and removal of spoil of the single storey garage in order to form the site. Any remedial works required to the existing Rectory following demolition will be the responsibility of the vendor. In addition, the vendor will erect a 6-foot close panel fence with concrete posts on the new boundary between the gardens up to the existing garage.
Community Infrastructure Levy - The proposed development attracts a Community Infrastructure Levy that in December 2022 was calculated at £16,009.78. This requires independent clarification and will be the responsibility of the purchaser to pay when appropriate.
Restirction On Title - It is the vendors intention to take out a suitable transferable Indemnity Insurance Policy in respect of the Restrictions on the Title.
Further Information - A Site Plan, Planning Documents and Title Documents among other information is available to downloaded from our website at
Tenure - The site is to be sold on a freehold basis with vacant possession upon completion.
Services - Interested parties are advised to make their own enquiries with the relevant statutory authorities to ensure the availability and sufficient capacity at the site in order to service and drain the proposed development.
Vat - It is understood that VAT will not be applied to this transaction.
Viewing Arrangements - It is possible to get a good impression of the site from the public highway. However, should you require a more detailed inspection of the site, prior arrangement will need to be made through the agent. Please contact Graeme Dowd on to make the necessary arrangements.
Offers - Offers are sought by way of Informal Tender on an Unconditional (STC) basis only for the freehold.
Only offers in writing will be considered.
All offers MUST include details of any on site due diligence that will be required prior to an exchange of contracts as well as evidence to demonstrate that funds are available to complete the transaction.
The closing date for initial offers is 12 noon on Friday 13th October 2023.
Depending on the outcome of the initial round of bids, the vendor reserves the right to seek a further round of best and final bids if it is deemed appropriate.
As a Regulated Industry under Anti-Money Laundering Regulations, RPC Land & New Homes will need to verify the identify of all purchasers of the site and this will be completed before Heads of Terms are issued to the preferred bidder.
The vendor is not obligated to accept the highest or any bid made.
Brochures
Boxley Road, Penenden Heath, MaidstoneBoxley Road, Penenden Heath, Maidstone
NEAREST STATIONS
Distances are straight line measurements from the centre of the postcode- Maidstone East Station0.6 miles
- Maidstone Barracks Station0.9 miles
- Maidstone West Station1.2 miles
Notes
Disclaimer - Property reference 32565123. The information displayed about this property comprises a property advertisement. Rightmove.co.uk makes no warranty as to the accuracy or completeness of the advertisement or any linked or associated information, and Rightmove has no control over the content. This property advertisement does not constitute property particulars. The information is provided and maintained by RPC Land and New Homes, Kent. Please contact the selling agent or developer directly to obtain any information which may be available under the terms of The Energy Performance of Buildings (Certificates and Inspections) (England and Wales) Regulations 2007 or the Home Report if in relation to a residential property in Scotland.
Map data ©OpenStreetMap contributors.





