Balearic Islands, Mallorca, Campanet, Spain
- PROPERTY TYPE
Town House
- BEDROOMS
3
- BATHROOMS
3
- SIZE
1,615 sq ft
150 sq m
Key features
- With building project
- Storage room
- Jacuzzi
- Garden
- Basement
- Laundry room
Description
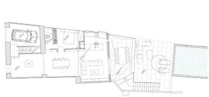
This project entails a 170-square-meter house distributed across two floors and a basement.
The final design will encompass four bedrooms and three bathrooms, with the master suite featuring a private terrace equipped with a jacuzzi. The property also includes an 8,000-square-meter garden area with a terrace and swimming pool.
The basement of the house will be home to the machine room, storage area, and laundry facilities. Please note that heating, furnishings, and the kitchen are not included in the base price; however, they can be customised to the buyer's preferences for an additional cost.
There are two purchasing options available: The first option is to acquire the house in its current state for 550,000€. Alternatively, the finished house can be acquired without furnishings for 890,000€.
Campanet, a charming small town located in the northeastern part of Mallorca, offers a serene environment set amidst the stunning natural backdrop of the Tramuntana mountain range. This area is renowned for its pure spring water sources and ancient wells. Furthermore, Campanet's strategic location means that the city of Palma and the airport can be reached within a 30-minute drive. With its elevated position, Campanet offers picturesque valley views, creating a tranquil living experience.
Balearic Islands, Mallorca, Campanet, Spain
NEAREST AIRPORTS
Distances are straight line measurements- Palma de Mallorca(International)19.0 miles
- Menorca(International)67.2 miles
Advice on buying Spanish property
Learn everything you need to know to successfully find and buy a property in Spain.
Notes
This is a property advertisement provided and maintained by Heritage Homes Mallorca, Portals Nous (reference 235400_STHO933) and does not constitute property particulars. Whilst we require advertisers to act with best practice and provide accurate information, we can only publish advertisements in good faith and have not verified any claims or statements or inspected any of the properties, locations or opportunities promoted. Rightmove does not own or control and is not responsible for the properties, opportunities, website content, products or services provided or promoted by third parties and makes no warranties or representations as to the accuracy, completeness, legality, performance or suitability of any of the foregoing. We therefore accept no liability arising from any reliance made by any reader or person to whom this information is made available to. You must perform your own research and seek independent professional advice before making any decision to purchase or invest in overseas property.





