
5 bedroom detached house for sale
Chestnut Way, Littleborough, Rochdale, OL15

- PROPERTY TYPE
Detached
- BEDROOMS
5
- BATHROOMS
3
- SIZE
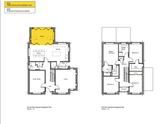
2,804 sq ft
261 sq m
- TENUREDescribes how you own a property. There are different types of tenure - freehold, leasehold, and commonhold.Read more about tenure in our glossary page.
Freehold
Key features
- STUNNING 5 BEDROOM NEW BUILD DETACHED
- FULLY LAWNED GARDEN WITH PATIO
- AMPLE PARKING & GARAGE
- VERSATILE ACCOMMODATION
- WONDERFUL OPEN PLAN LIVING/DINING KITCHEN WITH BI-FOLD DOORS ONTO THE GARDEN FAMILY BATHROOM, MASTER EN SUITE & SEPARATE SHOWER ROOM
- EFFICIENT HOMES WITH AIR SOURCE HEAT PUMPS & UNDER FLOOR HEATING
- 10 YEAR WARRANTY
Description
at Chestnut Way—an exceptioal boutique development of just nine architect-designed homes, each crafted in natural stone with slate roofs and finished to an extraordinary specification. Blending countryside calm with outstanding connectivity, the location offers effortless access to local amenities, scenic walking routes and a nearby rail link to Manchester and Leeds, with Manchester Airport only 30 minutes away. Every home is individually tailored, giving buyers the opportunity to shape layouts and finishes to their lifestyle. Eco-conscious design lies at the heart of the development, with zoned underfloor heating, air-source heat pumps and optional solar panels. Inside, generous living spaces include five double bedrooms, a dedicated cinema/leisure room, premium kitchen and bathroom collections with Neff appliances, Cat 6 wiring and bespoke media walls. Expansive bifold doors open to fully landscaped gardens, with the option to add a striking Orangery. Each property benefits from a private driveway, the choice of an integrated or detached garage, a fitted security alarm system with optional CCTV, and an EV charging point—creating a rare opportunity to secure a home that truly elevates modern living.
Brochures
Web DetailsParticulars- COUNCIL TAXA payment made to your local authority in order to pay for local services like schools, libraries, and refuse collection. The amount you pay depends on the value of the property.Read more about council Tax in our glossary page.
- Band: TBC
- PARKINGDetails of how and where vehicles can be parked, and any associated costs.Read more about parking in our glossary page.
- Yes
- GARDENA property has access to an outdoor space, which could be private or shared.
- Yes
- ACCESSIBILITYHow a property has been adapted to meet the needs of vulnerable or disabled individuals.Read more about accessibility in our glossary page.
- Ask agent
Energy performance certificate - ask agent
Chestnut Way, Littleborough, Rochdale, OL15
Add an important place to see how long it'd take to get there from our property listings.
__mins driving to your place
Get an instant, personalised result:
- Show sellers you’re serious
- Secure viewings faster with agents
- No impact on your credit score
Your mortgage
Notes
Staying secure when looking for property
Ensure you're up to date with our latest advice on how to avoid fraud or scams when looking for property online.
Visit our security centre to find out moreDisclaimer - Property reference ROC230668. The information displayed about this property comprises a property advertisement. Rightmove.co.uk makes no warranty as to the accuracy or completeness of the advertisement or any linked or associated information, and Rightmove has no control over the content. This property advertisement does not constitute property particulars. The information is provided and maintained by Cowell & Norford, Rochdale. Please contact the selling agent or developer directly to obtain any information which may be available under the terms of The Energy Performance of Buildings (Certificates and Inspections) (England and Wales) Regulations 2007 or the Home Report if in relation to a residential property in Scotland.
*This is the average speed from the provider with the fastest broadband package available at this postcode. The average speed displayed is based on the download speeds of at least 50% of customers at peak time (8pm to 10pm). Fibre/cable services at the postcode are subject to availability and may differ between properties within a postcode. Speeds can be affected by a range of technical and environmental factors. The speed at the property may be lower than that listed above. You can check the estimated speed and confirm availability to a property prior to purchasing on the broadband provider's website. Providers may increase charges. The information is provided and maintained by Decision Technologies Limited. **This is indicative only and based on a 2-person household with multiple devices and simultaneous usage. Broadband performance is affected by multiple factors including number of occupants and devices, simultaneous usage, router range etc. For more information speak to your broadband provider.
Map data ©OpenStreetMap contributors.




