
The Street, Little Clacton, Clacton-On-Sea
- PROPERTY TYPE
Plot
- SIZE
Ask agent
Key features
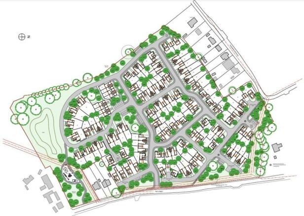
- PLANNING PASSED FOR 98 HOMES
- PRE APP CURRENTLY IN TO INCREASE THIS TO 122 HOMES
- HIGHLY SOUGHT AFTER LOCATION IN WEELEY
- CLOSE TO WEELEY TRAIN STATION
- CLOSE TO THORPE-LE-SOKEN TRAIN STATION
- CLOSE TO THE SEAFRONT
- SEMI RURAL LOCATION
- OUTSTANDING RETURN ON INVESTMENT OPPORTUNITY
- FANTASTIC S106 DETAILS TO BE DISCUSSED FURTHER IN DETAIL
- ASPIRE WOULD SEEK TO BE INSTRUCTED ON NEW HOME SALES
Description
The development will benefit from being within close proximity to Weeley and Thorpe-Le-Soken Railway Stations, as well as various local amenities. Weeley Heath, a sought-after village in Little Clacton near Clacton On Sea surrounded by open fields, presents a picturesque setting with all necessities easily accessible and offers convenient access to essentials with a nearby convenience store and features a Village Hall hosting a range of social events.
For socializing with friends and family, there are several eateries and pubs in the vicinity, all known for their welcoming atmospheres and high-quality food and drinks. The village's own railway station connects to Colchester in 25 minutes, Chelmsford in an hour, and Central London in just 90 minutes. For a broader shopping and entertainment experience, Clacton, Frinton, and Colchester, located 4, 7, and 12 miles away respectively, offer a diverse array of modern supermarkets, high street brands, independent boutiques, trendy coffee shops, restaurants, and entertainment options.
Tendring District Council granted planning permission Ref 20/00016/DETAIL
Fantastic s106, for further details and more information please do not hesitate to get in touch to discuss the exiting opportunity further.
Please contact Aspire Estate Agents for any enquires and Aspire Estate Agents would seek to be instructed as agent on all new homes being sold.
Brochures
The Street, Little Clacton, Clacton-On-SeaBrochureThe Street, Little Clacton, Clacton-On-Sea
NEAREST STATIONS
Distances are straight line measurements from the centre of the postcode- Thorpe-le-Soken Station1.5 miles
- Weeley Station1.8 miles
- Clacton Station2.7 miles
Notes
Disclaimer - Property reference 32773030. The information displayed about this property comprises a property advertisement. Rightmove.co.uk makes no warranty as to the accuracy or completeness of the advertisement or any linked or associated information, and Rightmove has no control over the content. This property advertisement does not constitute property particulars. The information is provided and maintained by Aspire Estate Agents, Benfleet. Please contact the selling agent or developer directly to obtain any information which may be available under the terms of The Energy Performance of Buildings (Certificates and Inspections) (England and Wales) Regulations 2007 or the Home Report if in relation to a residential property in Scotland.
Map data ©OpenStreetMap contributors.






