
Detached house for sale
Marlborough Street, Scarborough

- PROPERTY TYPE
Detached
- SIZE
Ask agent
- TENUREDescribes how you own a property. There are different types of tenure - freehold, leasehold, and commonhold.Read more about tenure in our glossary page.
Freehold
Description
Location - The site is situated on Marlborough Street which is close to the Old Town and the main Town Centre. From Scarborough Railway Station turn onto Northway, at the traffic lights turn right onto Victoria Road and proceed straight onto Castle Road. At the roundabout proceed straight ahead on Castle Road and then take your first turning left onto Marlborough Street with the building situated on the corner on the right hand side.
The Building - Currently arranged as a 3 storey workshop / warehouse the building is divided into 3 separate letting units with approximately 4,800 sq ft across each floor:
The building is ideal for renovation / re-development and could remain in its current arrangement until future development:
The previous planning permission can be viewed on the local authority planning portal using the reference Decision No 05/02137/FL
Tenure - Freehold
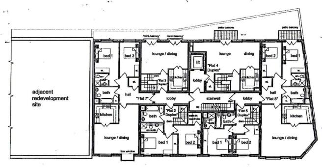
Full Description - A large storey building situated towards Scarborough Old Town and the main Town Centre. Currently arranged as various warehouse space the building has planning permission passed in October 2005 for the demolition and redevelopment to create 16 self-contained flats with lower ground floor car parking, decision notice 05/0237/FL. This has expired and advice from Scarborough Borough Council planning department should be obtained prior to commitment to purchase.
Location - The site is situated on Marlborough Street which is close to the Old Town and the main town centre. From Scarborough railway station turn onto Northway, at the traffic lights turn right onto Victoria Road and proceed straight onto Castle Road. At the roundabout proceed straight ahead on Castle Road and then take your first turning left onto Marlborough Street with the building situated on the corner on the right hand side.
Planning - The previous planning application can be viewed on the local authority planning portal using the reference Decision No: 05/02137/FL
Brochures
Marlborough Street, Scarborough- COUNCIL TAXA payment made to your local authority in order to pay for local services like schools, libraries, and refuse collection. The amount you pay depends on the value of the property.Read more about council Tax in our glossary page.
- Ask agent
- PARKINGDetails of how and where vehicles can be parked, and any associated costs.Read more about parking in our glossary page.
- Yes
- GARDENA property has access to an outdoor space, which could be private or shared.
- Ask agent
- ACCESSIBILITYHow a property has been adapted to meet the needs of vulnerable or disabled individuals.Read more about accessibility in our glossary page.
- Ask agent
Energy performance certificate - ask agent
Marlborough Street, Scarborough
Add an important place to see how long it'd take to get there from our property listings.
__mins driving to your place
Get an instant, personalised result:
- Show sellers you’re serious
- Secure viewings faster with agents
- No impact on your credit score
Your mortgage
Notes
Staying secure when looking for property
Ensure you're up to date with our latest advice on how to avoid fraud or scams when looking for property online.
Visit our security centre to find out moreDisclaimer - Property reference 32793702. The information displayed about this property comprises a property advertisement. Rightmove.co.uk makes no warranty as to the accuracy or completeness of the advertisement or any linked or associated information, and Rightmove has no control over the content. This property advertisement does not constitute property particulars. The information is provided and maintained by Colin Ellis Estate Agents, Scarborough. Please contact the selling agent or developer directly to obtain any information which may be available under the terms of The Energy Performance of Buildings (Certificates and Inspections) (England and Wales) Regulations 2007 or the Home Report if in relation to a residential property in Scotland.
*This is the average speed from the provider with the fastest broadband package available at this postcode. The average speed displayed is based on the download speeds of at least 50% of customers at peak time (8pm to 10pm). Fibre/cable services at the postcode are subject to availability and may differ between properties within a postcode. Speeds can be affected by a range of technical and environmental factors. The speed at the property may be lower than that listed above. You can check the estimated speed and confirm availability to a property prior to purchasing on the broadband provider's website. Providers may increase charges. The information is provided and maintained by Decision Technologies Limited. **This is indicative only and based on a 2-person household with multiple devices and simultaneous usage. Broadband performance is affected by multiple factors including number of occupants and devices, simultaneous usage, router range etc. For more information speak to your broadband provider.
Map data ©OpenStreetMap contributors.




