Wisbech St. Mary, Wisbech, Cambridgeshire, PE13 4RD
- PROPERTY TYPE
Plot
- SIZE
Ask agent
Key features
- No S106 requirements
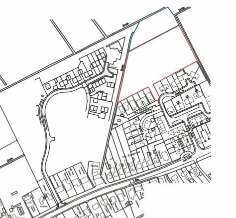
- Site comprises 0.98 Hectares (STMS) with consent plus an additional 0.3 Hectares (STMS) of adjoining land to the north
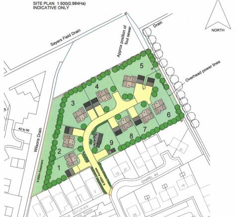
- Outline Planning Consent for up to 9 Dwellings
- Prime Village Location
- Residential Development Site
Description
DESCRIPTION A Residential Development Site of 0.98 Ha together with an additional adjoining 0.3 Ha of land in the centre of Wisbech St Mary, with Outline Planning Consent for up to 9 dwellings with No S106 requirements attached.
LOCATION The site is situated in the heart of the village, with access from Chapel Avenue, in close proximity to the Primary School, Playing Fields, Local Shops and other village facilities, which are all within walking distance.
PLANNING Outline Planning Consent was approved under ref F/YR23/0512/O by Fenland District Council on 13th December 2023 for up to nine dwellings. There is no S106 agreement attached to the consent. A copy of the consent is available for inspection on request or can be downloaded from the council website.
The indicative layout plan submitted with the application is reproduced on these particulars.
SERVICES It is understood that mains Water Electricity and Drainage are available to the site, but prospective purchasers should make their own enquiries of the relevant utilities.
DEVELOPMENT OVERAGE COVENANT The land outside the existing consent , verged blue on the location plan, is included in the sale but subject to a development overage covenant reserving 50% of any uplift in value resulting from consent on this land for residential or commercial value to the vendor for a period of 20 years.
METHOD OF SALE The property is for sale freehold with vacant possession, and offers are invited around the guide price level. Prospective purchaser will be expected to demonstrate funding availability for the purchase.
DIRECTIONS Chapel Avenue is on the northern side of High Road Wisbech St Mary, close to the junction with Church Road. The land is at the far end of Chapel Avenue.
PARTICULARS PREPARED 3rd January 2024
Brochures
Brochure 1Wisbech St. Mary, Wisbech, Cambridgeshire, PE13 4RD
NEAREST STATIONS
Distances are straight line measurements from the centre of the postcode- March Station6.3 miles
Notes
Disclaimer - Property reference S826331. The information displayed about this property comprises a property advertisement. Rightmove.co.uk makes no warranty as to the accuracy or completeness of the advertisement or any linked or associated information, and Rightmove has no control over the content. This property advertisement does not constitute property particulars. The information is provided and maintained by Maxey Grounds, Wisbech. Please contact the selling agent or developer directly to obtain any information which may be available under the terms of The Energy Performance of Buildings (Certificates and Inspections) (England and Wales) Regulations 2007 or the Home Report if in relation to a residential property in Scotland.
Map data ©OpenStreetMap contributors.








