Building Plot, Charles Thomas Avenue, Pembroke Dock
- PROPERTY TYPE
Land
- SIZE
Ask agent
Key features
- APPROX 125FT (38M) x 82FT (25M) OVERALL PLUS OPTIONAL "STRIP"
- ALL MAINS SERVICES AVAILABLE NEARBY - TBC
- OUTLINE PLANNING CONSENT - PCC REF: 24/0661/PA (Access from CTA)
- LOW SECTION 106 CONTRIBUTION - JUST £2,543.75
Description
GENERAL
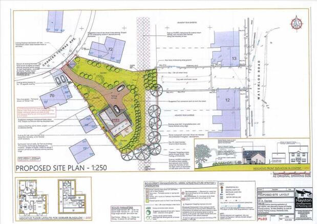
This Building Plot is on the popular Charles Thomas development and is well positioned for accessing the amenities of Pembroke Dock plus the main roads leading to other parts of Pembrokeshire and beyond.
There is outline consent only at present. The Buyers will need to obtain their own Detailed Planning Permission (i.e. Reserved Matters). The Plot would appear to be suitable for a House, Dormer or Bungalow. There are scale parameters i.e. Length - between 9m and 2.6m, Width between 7m and 10.1m and Height between 6m and 8.5m.
The Buyers of the Plot will have the option of acquiring the "Strip" which is the gap between 12 and 13 Waterloo Road. This "Strip" would perhaps be ideal for storage and/or a secondary access to the Plot.
SERVICES
We understand that all mains are available nearby. Prospective Buyers must make their own enquiries in respect of utilities.
ROAD
Charles Thomas Avenue is a public highway.
TENURE
We understand that this is Freehold.
PLANNING CONSENT
Please refer to Pembrokeshire County Council's planning portal/website.
DIRECTIONS
The entrance to Charles Thomas Avenue is off London Road opposite Tesco. The Plot is on the right hand side between No.s 70 and 72.
VIEWING
The Plot is "open" for viewing. However, all interested parties must view at their own risk.
Building Plot, Charles Thomas Avenue, Pembroke Dock
NEAREST STATIONS
Distances are straight line measurements from the centre of the postcode- Pembroke Dock Station0.4 miles
- Pembroke Station1.9 miles
- Lamphey Station3.2 miles



Notes
Disclaimer - Property reference GUY1R10698. The information displayed about this property comprises a property advertisement. Rightmove.co.uk makes no warranty as to the accuracy or completeness of the advertisement or any linked or associated information, and Rightmove has no control over the content. This property advertisement does not constitute property particulars. The information is provided and maintained by Guy Thomas & Co, Pembroke. Please contact the selling agent or developer directly to obtain any information which may be available under the terms of The Energy Performance of Buildings (Certificates and Inspections) (England and Wales) Regulations 2007 or the Home Report if in relation to a residential property in Scotland.
Map data ©OpenStreetMap contributors.



