Office for sale
The Pump House, Coton Hill, Shrewsbury, SY1 2DP
- SIZE AVAILABLE
9,072 sq ft
843 sq m
- SECTOR
Office for sale
Key features
- EPC rating A
- BREEAM rated with solar panels
- Net initial yield 7.5% after allowing for normal purchasers costs
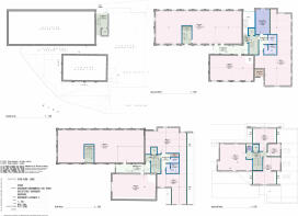
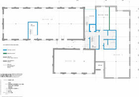
- Total Net Internal Floor Area of approximately 9,072 ft (842.85 m sq)
- 7 designated car parking spaces
- Located in an area of mixed development
Description
The property comprises of a multi let commercial investment opportunity that is in part three, part two and part single detached property. The property is arranged to provide a variety of office/business suites that provide a Total Net Internal Floor Area of approximately 9,072 ft (842.85 m sq).
The property was comprehensively refurbished approximately 15 years and the accommodation benefits from a rating under BREEAM rating and an EPC rating of A and the property benefits from significant environmental enhancing features including solar panels that make the property attractive to property investors.
The property has 7 designated car parking spaces, with the potential to create a further car parking space within the boundaries of its ownership. Access to the property is from Coton Hill. A viewing of the property is strongly recommended to appreciate the standard of the property and its multi -functional use.
The property is of part brick construction and part timber frame with a slate roof. The property currently offers a multi let investment but there is potential in the future for the property to be of interest to an owner occupier and a property developer/speculator who may consider there is potential for alternative uses for the property in the future as it located in an area of mixed development.
Location
The property is prominently located fronting onto Coton Hill, which serves as one of the main arterial roads into Shrewsbury Town Centre from the north. The property is located close to the junction of Coton Hill with Chester Street and benefits from attractive views over the River Severn.
The property is located in an area of mixed development with surrounding occupiers including The Gateway, Benbow Quay residential development and Winchester House Dental Practice.
Shrewsbury is the County Town of Shropshire and has a significant catchment population as well as acting as an administrative and tourist centre. The town is sat on the River Severn and had a population of 71,715 at the2011 census.
The town is located approximately 48 miles west of the City of Birmingham and approximately 44 miles south of the City of Chester. There is access to the national road network via the A5(M54 link road).
Brochures
The Pump House, Coton Hill, Shrewsbury, SY1 2DP
NEAREST STATIONS
Distances are straight line measurements from the centre of the postcode- Shrewsbury Station0.2 miles




Notes
Disclaimer - Property reference 191364-1. The information displayed about this property comprises a property advertisement. Rightmove.co.uk makes no warranty as to the accuracy or completeness of the advertisement or any linked or associated information, and Rightmove has no control over the content. This property advertisement does not constitute property particulars. The information is provided and maintained by Halls Commercial, Shrewsbury. Please contact the selling agent or developer directly to obtain any information which may be available under the terms of The Energy Performance of Buildings (Certificates and Inspections) (England and Wales) Regulations 2007 or the Home Report if in relation to a residential property in Scotland.
Map data ©OpenStreetMap contributors.






