
Prospect Hill, Kidderminster, Worcestershire, DY10
- PROPERTY TYPE
Land
- SIZE
Ask agent
Key features
- Residential Development Opportunity
- Previous Planning Application for 8 Properties
- Planning Has Now Lasped But Will Be Reinstated If Required
- Comprised Of Two Bedrooms Units With Total Floor Area of 85sqm Per Unit
- Freehold Site
- Currently Used As A Carpark
- Previous Application Ref: 21/0961/FUL
Description
Further pictures can be seen online at
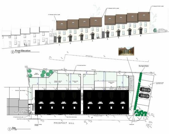
PREVIOUS PROPOSAL
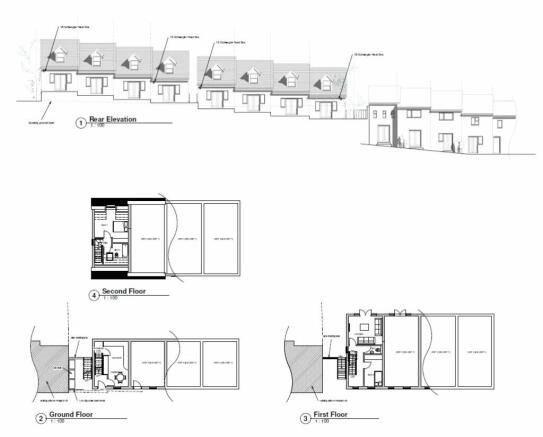
The 8 properties have two bedrooms set over three stories and have a floor area of 85sqm. The units have been designed in accordance with the Government Technical Requirements in respect of room sizes.
PROPOSED FRONT ELEVATION
6 car parking spaces are to be provided each space being 2.5m x 5.0m in size. 16 cycle spaces will be provided with a secure cycle shelter as indicated on the site plan. Each property will have their own rear amenity space with rear access. A bin storage area will also be provided for 3 large communal bins, 1 general waste and 2 recycling. These will be set within a walled compound area accessible from the front.
Agent Note
The planning application has now lapsed, but the client has advised that they are prepared to reinstate planning if a new purchaser wishes, and make any amendments to the planning application before resubmitting.
Tenure & Possession
Freehold with vacant possession upon completion.
Services
We cannot verify that mains water, electricity, gas and drainage are connected or installed on the site. Prospective purchasers are advised to obtain verification from their solicitor, surveyor or specialist contractor as appropriate.
Viewing
By prior appointment with Doolittle & Dalley .
Reference: jea.lb.28.03.2022
Anti-Money Laundering Regulations
In accordance with the Money Laundering, Terrorist Financing and Transfer of Funds (Information on the Payer) Regulations 2017, the successful purchaser will be required to provide satisfactory evidence of identity and the source of funds before the sale can proceed. This is a legal requirement. A charge of £45 (inclusive of VAT) will be payable by each buyer (and anyone providing a gifted deposit) to cover the cost of undertaking these anti-money laundering checks.
Valuation Advice for Prospective Purchasers
If you have a property to sell, we can provide you with a Free Market Appraisal and marketing advice without any obligation.
Misrepresentations Act
Messrs. Doolittle & Dalley for themselves and for the vendors/lessors of this property whose agents they are, give notice that: - 1.These particulars do not constitute, or constitute any part, of an offer or a contract. 2.All statements contained in these particulars as to this property are made without responsibility on the part of Messrs. Doolittle & Dalley or the vendor. 3.None of the statements contained in these particulars as to this property are to be relied on as statements or representations of fact. 4.Any intending purchaser must satisfy him/herself by inspection or otherwise, as to the correctness of each of the statements contained in these particulars. 5.The vendor does not make or give and neither Messrs. Doolittle & Dalley or any person in their employ has any authority to make or give any representation or warranty whatever in relation to this property.
Brochures
ParticularsProspect Hill, Kidderminster, Worcestershire, DY10
NEAREST STATIONS
Distances are straight line measurements from the centre of the postcode- Kidderminster Station0.4 miles
- Blakedown Station3.2 miles
- Hartlebury Station3.8 miles



Notes
Disclaimer - Property reference KID220196. The information displayed about this property comprises a property advertisement. Rightmove.co.uk makes no warranty as to the accuracy or completeness of the advertisement or any linked or associated information, and Rightmove has no control over the content. This property advertisement does not constitute property particulars. The information is provided and maintained by Doolittle & Dalley, Kidderminster. Please contact the selling agent or developer directly to obtain any information which may be available under the terms of The Energy Performance of Buildings (Certificates and Inspections) (England and Wales) Regulations 2007 or the Home Report if in relation to a residential property in Scotland.
Map data ©OpenStreetMap contributors.





