
Block of apartments for sale
Church Road, Hayes, UB3 2LW

- PROPERTY TYPE
Block of Apartments
- SIZE
809 sq ft
75 sq m
- TENUREDescribes how you own a property. There are different types of tenure - freehold, leasehold, and commonhold.Read more about tenure in our glossary page.
Freehold
Key features
- Freehold Building For Sale
- Potential To Convert & Develop Subject to Planning Permission
- Private Rear Garden/Parking
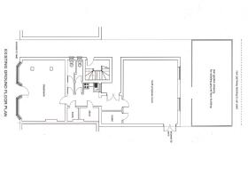
- Plans Approved for a Two Bedroom, Two Bathroom Flat on The Ground Floor
- Building Comprises Ground Floor Commercial Unit, Two Bedroom Flat & A Three Bedroom Flat
- Popular Location & Close Proximity to Schools, Transport Links & Amenities
- EPC Rating: C
- Viewings Highly Recommended
- Existing & Proposed Plans Available
- Approximately 1.0 Mile from Hayes & Harlington Station
Description
The property provides scope to convert and develop subject to planning permission or could still be used as a long term investment project. Please contact our branch for more information regarding this.
Church Road is a popular and prime residential road in Hayes and is within close proximity to a variety of different schools, amenities, transport links and amenities. You are 1 mile away from Hayes and Harlington Station which now services the Elizabeth Line, the A312/A40/M4 corridors and surrounding areas along with Heathrow Airport and Stockley Park.
Brochures
Church Road, Hayes, UB3 2LW- COUNCIL TAXA payment made to your local authority in order to pay for local services like schools, libraries, and refuse collection. The amount you pay depends on the value of the property.Read more about council Tax in our glossary page.
- Ask agent
- PARKINGDetails of how and where vehicles can be parked, and any associated costs.Read more about parking in our glossary page.
- Yes
- GARDENA property has access to an outdoor space, which could be private or shared.
- Yes
- ACCESSIBILITYHow a property has been adapted to meet the needs of vulnerable or disabled individuals.Read more about accessibility in our glossary page.
- Ask agent
Church Road, Hayes, UB3 2LW
Add an important place to see how long it'd take to get there from our property listings.
__mins driving to your place
Get an instant, personalised result:
- Show sellers you’re serious
- Secure viewings faster with agents
- No impact on your credit score
Your mortgage
Notes
Staying secure when looking for property
Ensure you're up to date with our latest advice on how to avoid fraud or scams when looking for property online.
Visit our security centre to find out moreDisclaimer - Property reference 32846587. The information displayed about this property comprises a property advertisement. Rightmove.co.uk makes no warranty as to the accuracy or completeness of the advertisement or any linked or associated information, and Rightmove has no control over the content. This property advertisement does not constitute property particulars. The information is provided and maintained by Hunters, Hayes. Please contact the selling agent or developer directly to obtain any information which may be available under the terms of The Energy Performance of Buildings (Certificates and Inspections) (England and Wales) Regulations 2007 or the Home Report if in relation to a residential property in Scotland.
*This is the average speed from the provider with the fastest broadband package available at this postcode. The average speed displayed is based on the download speeds of at least 50% of customers at peak time (8pm to 10pm). Fibre/cable services at the postcode are subject to availability and may differ between properties within a postcode. Speeds can be affected by a range of technical and environmental factors. The speed at the property may be lower than that listed above. You can check the estimated speed and confirm availability to a property prior to purchasing on the broadband provider's website. Providers may increase charges. The information is provided and maintained by Decision Technologies Limited. **This is indicative only and based on a 2-person household with multiple devices and simultaneous usage. Broadband performance is affected by multiple factors including number of occupants and devices, simultaneous usage, router range etc. For more information speak to your broadband provider.
Map data ©OpenStreetMap contributors.


![preview[1].png](https://media.rightmove.co.uk/dir/property-photo/ed1808016/144014924/ed18080161d16c124b6ec1250fa2d287_max_656x437.png)






