Plot 8, Little Meadow, Hoddlesden, Darwen

- PROPERTY TYPE
House
- BEDROOMS
5
- BATHROOMS
3
- SIZE
Ask agent
- TENUREDescribes how you own a property. There are different types of tenure - freehold, leasehold, and commonhold.Read more about tenure in our glossary page.
Freehold
Description
The homes will boast a high-quality specification throughout, including features such as underfloor heating throughout, Karndean-style flooring to the kitchens and bathrooms, and electric vehicle charging points. The properties will also benefit from fully integrated kitchens with Neff appliances including an oven, hob with extractor, fridge, freezer, dishwasher, a Quooker tap, and trendy quartz worktops will finish the design in style, while the bathrooms will be presented with half tiled walls and full tiling around the showers.
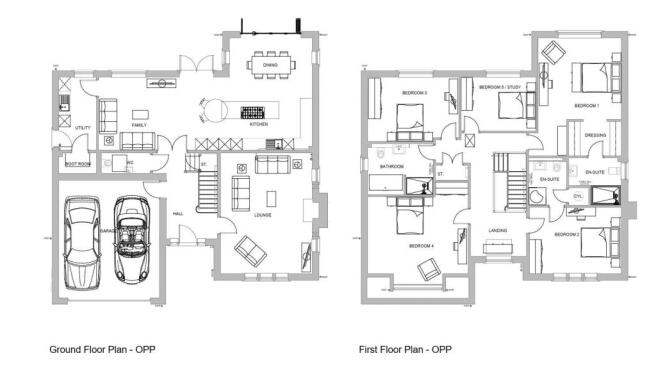
Plot 8 - Plot 8 offers luxurious family living with an abundance of space across a comprehensive floor plan to suit the whole family.
On the ground floor to the rear is a super spacious kitchen and open plan living area with family area/day lounge and informal dining/breakfast area - its perfect for both everday modern family life as well as when hosting family and friends. The kitchen aspect also features a central island which gives it that extra practicality for making it the social hub of the home. Next to the kitchen is also a handy utility with boot room, and external access door.
Also on the ground floor is a large lounge, downstairs WC, and integral garage.
From the central hallway a feature staircase leads to the galleried landing connecting the five well proportioned bedrooms. The master benefits from an en-suite with his and hers sink, and dressing room, and the second bedroom benefits from an en-suite too. The three other double rooms share the large family bathroom with four piece suite including bath, walk in shower, wash basin and WC.
Countryside Convenience - On the fringe of the West Pennines with immediate access to Hoddlesden village and easy access to Darwen?s amenities and transport links, this sought-after spot has moorland walks and endless countryside on your doorstep. And from a practical perspective everything that a modern family needs is within a short drive? Darwen offers a variety of schools, leisure facilities, supermarkets, restaurants and pubs, as well as the train station and motorway access via the M65. The neighbouring Bolton and Blackburn offer an even wider variety of amenities, and traditional amenities can be found in Hoddlesden village and neighbouring Edgworth.
Brochures
Plot 8, Little Meadow, Hoddlesden, Darwen- COUNCIL TAXA payment made to your local authority in order to pay for local services like schools, libraries, and refuse collection. The amount you pay depends on the value of the property.Read more about council Tax in our glossary page.
- Ask agent
- PARKINGDetails of how and where vehicles can be parked, and any associated costs.Read more about parking in our glossary page.
- Yes
- GARDENA property has access to an outdoor space, which could be private or shared.
- Yes
- ACCESSIBILITYHow a property has been adapted to meet the needs of vulnerable or disabled individuals.Read more about accessibility in our glossary page.
- Ask agent
Energy performance certificate - ask agent
Plot 8, Little Meadow, Hoddlesden, Darwen
Add an important place to see how long it'd take to get there from our property listings.
__mins driving to your place
Get an instant, personalised result:
- Show sellers you’re serious
- Secure viewings faster with agents
- No impact on your credit score

Your mortgage
Notes
Staying secure when looking for property
Ensure you're up to date with our latest advice on how to avoid fraud or scams when looking for property online.
Visit our security centre to find out moreDisclaimer - Property reference 32927763. The information displayed about this property comprises a property advertisement. Rightmove.co.uk makes no warranty as to the accuracy or completeness of the advertisement or any linked or associated information, and Rightmove has no control over the content. This property advertisement does not constitute property particulars. The information is provided and maintained by Claves, Bolton. Please contact the selling agent or developer directly to obtain any information which may be available under the terms of The Energy Performance of Buildings (Certificates and Inspections) (England and Wales) Regulations 2007 or the Home Report if in relation to a residential property in Scotland.
*This is the average speed from the provider with the fastest broadband package available at this postcode. The average speed displayed is based on the download speeds of at least 50% of customers at peak time (8pm to 10pm). Fibre/cable services at the postcode are subject to availability and may differ between properties within a postcode. Speeds can be affected by a range of technical and environmental factors. The speed at the property may be lower than that listed above. You can check the estimated speed and confirm availability to a property prior to purchasing on the broadband provider's website. Providers may increase charges. The information is provided and maintained by Decision Technologies Limited. **This is indicative only and based on a 2-person household with multiple devices and simultaneous usage. Broadband performance is affected by multiple factors including number of occupants and devices, simultaneous usage, router range etc. For more information speak to your broadband provider.
Map data ©OpenStreetMap contributors.




