Land for sale
Hammond Drive, Ramsey, Harwich, Essex, CO12
- PROPERTY TYPE
Land
- SIZE
Ask agent
Description
The plot will be in a quiet cul-de-sac location located off Hammond drive, being within access to the Two Village primary school, Dovercourt town centre and A120.
All details can be viewed under Tendring District Council Public Access site - planning permission number 20/00342/FUL link to site is:
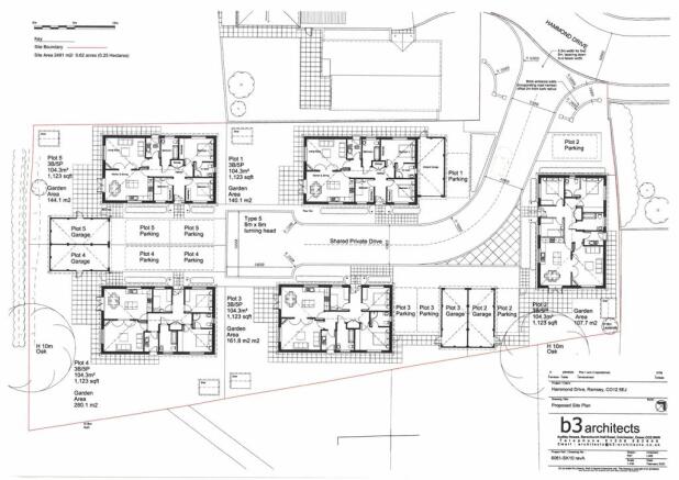
For easy reference Plot 1,2 & 3 on the block plan are on offer. Plots 4 & 5 are being retained by the current owner.
Footings are already in place.
Roadway to be provided at the buyer’s cost.
For further information and to discuss this prospect in further detail contact .
Hammond Drive, Ramsey, Harwich, Essex, CO12
NEAREST STATIONS
Distances are straight line measurements from the centre of the postcode- Harwich International Station1.9 miles
- Dovercourt Station2.4 miles
- Wrabness Station2.6 miles



Notes
Disclaimer - Property reference EHD240063. The information displayed about this property comprises a property advertisement. Rightmove.co.uk makes no warranty as to the accuracy or completeness of the advertisement or any linked or associated information, and Rightmove has no control over the content. This property advertisement does not constitute property particulars. The information is provided and maintained by Harwich Village Homes, Harwich. Please contact the selling agent or developer directly to obtain any information which may be available under the terms of The Energy Performance of Buildings (Certificates and Inspections) (England and Wales) Regulations 2007 or the Home Report if in relation to a residential property in Scotland.
Map data ©OpenStreetMap contributors.




