
7 bedroom detached house for sale
Robins Lane, Lolworth, Cambridge, CB23

- PROPERTY TYPE
Detached
- BEDROOMS
7
- BATHROOMS
4
- SIZE
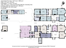
9,985 sq ft
928 sq m
- TENUREDescribes how you own a property. There are different types of tenure - freehold, leasehold, and commonhold.Read more about tenure in our glossary page.
Freehold
Key features
- High quality refurbished accommodation
- Potential to create separate annexe
- Large secluded position
- Useful outbuildings
- No onward chain
- EPC Rating = E
Description
Description
The Grange, also known as The Grange Manor House, at Lolworth is a substantial and exceptional detached Victorian property with 9985 sq ft of accommodation, built in the latter part of the 19th century of yellow brick elevations beneath a patterned tiled roof.
The property is Grade II Listed and situated virtually central to its plot and surrounded by beautiful gardens containing a wide range of specimen trees.
Central to the house is the impressive double height vaulted reception hall with a beautiful tessellated floor laid by Maw & Co, detailed ceiling and cornicing, and a fine staircase rising to a galleried landing. To the south is an elegant drawing room with oak herringbone laid floors and a substantial Italian marble fireplace with two pairs of French doors that lead to a loggia and enjoys views to the gardens. Adjacent to this room is the music room with intricate ceiling cornicing and detailing with deep square bay sash windows and an ornate marble fireplace.
There is a refitted kitchen/breakfast room with walnut fronted cabinets and Corian work surfaces with a cream 4 oven Aga with breakfast room beyond.
Overlooking the rear gardens is a beautifully proportioned dining room with a fireplace and lime washed floor boards. Facing the east gardens is a superb gym with facilities including both steam and infrared saunas and a shower room. The accommodation has high ceilings throughout and is shown in greater detail in the attached floor plans. It is unusual to find a period house with so many original features retained yet with modern facilities including an integral music system on the ground floor, a bespoke designed kitchen and modern fitted bathrooms.
The property is approached by a drive with a right of way granted to two neighbouring properties and Grange Farm. The driveway passes through brick pillars with white panelled gates which open to a large gravelled drive to the front lawn and the house. There are many mature trees including Cedar of Lebanon, Redwood, Copper Beech, Judas Trees, many varieties of Maple and a row of pollarded Lime Trees.
The gardens are beautifully maintained by the current owners. There is a 40’ x 20’ heated swimming pool within a private garden surrounded by tall yew hedges with a summer house including kitchen and also a pool house. There is a fruit orchard and a hard tennis court. To the side is garaging for three cars including a modern triple garage (10.6m x 6.7m), extensive gravelled parking area and a large greenhouse.
Location
The property is situated just 7½ miles north west of the high tech City of Cambridge in the small rural village of Lolworth.
Lolworth is accessed from the A14 westbound carriageway (Bar Hill exit) or via the new road from the Girton end of Huntingdon Road in Cambridge. There are comprehensive shopping facilities in nearby Bar Hill including a Tesco Extra Superstore. The A14 continues north to the A1, M1 and M6. And south to the M11.
Train services are available from Cambridge North (9.5 miles) via Cambridge to both King’s Cross and Liverpool Street stations.
To the south east is the high tech University City of Cambridge with comprehensive shopping, recreational and cultural facilities together with a range of renowned independent schools. Local schooling is at Elsworth (primary) and Swavesey Village College.
(all distances and times are approximate)
Square Footage: 9,985 sq ft
Acreage: 3.14 Acres
Additional Info
Pump House 2.6m x 2.9m
Summer House 6.2m x 3.9m
Brochures
Web DetailsParticulars- COUNCIL TAXA payment made to your local authority in order to pay for local services like schools, libraries, and refuse collection. The amount you pay depends on the value of the property.Read more about council Tax in our glossary page.
- Band: H
- PARKINGDetails of how and where vehicles can be parked, and any associated costs.Read more about parking in our glossary page.
- Yes
- GARDENA property has access to an outdoor space, which could be private or shared.
- Yes
- ACCESSIBILITYHow a property has been adapted to meet the needs of vulnerable or disabled individuals.Read more about accessibility in our glossary page.
- Ask agent
Robins Lane, Lolworth, Cambridge, CB23
Add an important place to see how long it'd take to get there from our property listings.
__mins driving to your place
Get an instant, personalised result:
- Show sellers you’re serious
- Secure viewings faster with agents
- No impact on your credit score
Your mortgage
Notes
Staying secure when looking for property
Ensure you're up to date with our latest advice on how to avoid fraud or scams when looking for property online.
Visit our security centre to find out moreDisclaimer - Property reference CAS210368. The information displayed about this property comprises a property advertisement. Rightmove.co.uk makes no warranty as to the accuracy or completeness of the advertisement or any linked or associated information, and Rightmove has no control over the content. This property advertisement does not constitute property particulars. The information is provided and maintained by Savills, Cambridge. Please contact the selling agent or developer directly to obtain any information which may be available under the terms of The Energy Performance of Buildings (Certificates and Inspections) (England and Wales) Regulations 2007 or the Home Report if in relation to a residential property in Scotland.
*This is the average speed from the provider with the fastest broadband package available at this postcode. The average speed displayed is based on the download speeds of at least 50% of customers at peak time (8pm to 10pm). Fibre/cable services at the postcode are subject to availability and may differ between properties within a postcode. Speeds can be affected by a range of technical and environmental factors. The speed at the property may be lower than that listed above. You can check the estimated speed and confirm availability to a property prior to purchasing on the broadband provider's website. Providers may increase charges. The information is provided and maintained by Decision Technologies Limited. **This is indicative only and based on a 2-person household with multiple devices and simultaneous usage. Broadband performance is affected by multiple factors including number of occupants and devices, simultaneous usage, router range etc. For more information speak to your broadband provider.
Map data ©OpenStreetMap contributors.





