
2 bedroom end of terrace house for sale
Bromyard, Herefordshire, HR7

- PROPERTY TYPE
End of Terrace
- BEDROOMS
2
- BATHROOMS
1
- SIZE
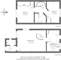
667 sq ft
62 sq m
- TENUREDescribes how you own a property. There are different types of tenure - freehold, leasehold, and commonhold.Read more about tenure in our glossary page.
Freehold
Key features
- 2 Bedrooms
- Lounge with feature spiral staircase
- Kitchen/Dining Room
- Downstairs WC
- Modern family Bathroom
- Private Gardens and side access
- Private driveway for 2 vehicles to park
- Additional alloment/secret garden to side of property
- Gas central heating and double glazed windows
Description
Situated within a corner of a quiet cul de sac and offering 2 private parking spaces. The property is ideal for first time buyers or investors. GUIDE PRICE £170,000-190,000.
Property Details
Located in the historic market town of Bromyard is this well presented 2 bedroom end of terrace home situated within a quiet cul de sac within a residential area. This modern home would be perfect for first time buyers, retirement or investors searching for a buy to let opportunity. The property has gas central heating and double glazed windows and is connected to mains gas, water, drainage and electric. This attractive end terrace offers side access to the rear garden which has a storage shed included. There is also a private driveway providing parking for 2 vehicles.
A well presented 2 bedroom end of terrace home situated within a quiet cul de sac. This modern home would be perfect for first time buyers, retirement or investors searching for a buy to let opportunity. The property has gas central heating and double glazed windows and is connected to mains gas, water, drainage and electric. This attractive end terrace offers side access to the rear garden which has a storage shed included. There is also a private driveway providing parking for 2 vehicles.
A rare asset to this property is the additional allotment/secret garden to the left side of the property which is included within the sale of this property. Its a secure, fenced area which would be perfect for garden lovers, dog or child area for safe play or as a peaceful haven to enjoy the outdoors just a few steps from your own home.
Brochures
More details from Chancellors- COUNCIL TAXA payment made to your local authority in order to pay for local services like schools, libraries, and refuse collection. The amount you pay depends on the value of the property.Read more about council Tax in our glossary page.
- Band: B
- PARKINGDetails of how and where vehicles can be parked, and any associated costs.Read more about parking in our glossary page.
- Off street
- GARDENA property has access to an outdoor space, which could be private or shared.
- Private garden
- ACCESSIBILITYHow a property has been adapted to meet the needs of vulnerable or disabled individuals.Read more about accessibility in our glossary page.
- Ask agent
Bromyard, Herefordshire, HR7
Add an important place to see how long it'd take to get there from our property listings.
__mins driving to your place
Get an instant, personalised result:
- Show sellers you’re serious
- Secure viewings faster with agents
- No impact on your credit score
Your mortgage
Notes
Staying secure when looking for property
Ensure you're up to date with our latest advice on how to avoid fraud or scams when looking for property online.
Visit our security centre to find out moreDisclaimer - Property reference 5202033. The information displayed about this property comprises a property advertisement. Rightmove.co.uk makes no warranty as to the accuracy or completeness of the advertisement or any linked or associated information, and Rightmove has no control over the content. This property advertisement does not constitute property particulars. The information is provided and maintained by Chancellors, Leominster. Please contact the selling agent or developer directly to obtain any information which may be available under the terms of The Energy Performance of Buildings (Certificates and Inspections) (England and Wales) Regulations 2007 or the Home Report if in relation to a residential property in Scotland.
*This is the average speed from the provider with the fastest broadband package available at this postcode. The average speed displayed is based on the download speeds of at least 50% of customers at peak time (8pm to 10pm). Fibre/cable services at the postcode are subject to availability and may differ between properties within a postcode. Speeds can be affected by a range of technical and environmental factors. The speed at the property may be lower than that listed above. You can check the estimated speed and confirm availability to a property prior to purchasing on the broadband provider's website. Providers may increase charges. The information is provided and maintained by Decision Technologies Limited. **This is indicative only and based on a 2-person household with multiple devices and simultaneous usage. Broadband performance is affected by multiple factors including number of occupants and devices, simultaneous usage, router range etc. For more information speak to your broadband provider.
Map data ©OpenStreetMap contributors.








