
Land for sale
Station Road, Ten Mile Bank, Downham Market, Norfolk, PE38
- PROPERTY TYPE
Land
- BEDROOMS
3
- BATHROOMS
2
- SIZE
Ask agent
Key features
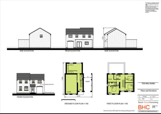
- GENEROUS PLOT SIZE WITH THE PROPERTY ONCE BUILT OFFERING AROUND 128 SQM OF LIVING SPACE
- QUIET AND RURAL VILLAGE LOCATION
- PLANNING PERMISSION GRANTED: Planning ref: 22/02138/F
- DETACHED TWO STOREY HOME
- IDEAL FOR A SELF BUILD OR DEVELOPER
- WITHIN CLOSE PROXIMITY OF TRANSPORT LINKS (A10)
Description
Station Road, Ten Mile Bank, Downham Market, Norfolk, PE38
NEAREST STATIONS
Distances are straight line measurements from the centre of the postcode- Downham Market Station5.0 miles

Notes
Disclaimer - Property reference THN_THN_LFSYCL_911_1041314062. The information displayed about this property comprises a property advertisement. Rightmove.co.uk makes no warranty as to the accuracy or completeness of the advertisement or any linked or associated information, and Rightmove has no control over the content. This property advertisement does not constitute property particulars. The information is provided and maintained by The Norfolk Agents, Kings Lynn. Please contact the selling agent or developer directly to obtain any information which may be available under the terms of The Energy Performance of Buildings (Certificates and Inspections) (England and Wales) Regulations 2007 or the Home Report if in relation to a residential property in Scotland.
Map data ©OpenStreetMap contributors.





