Grove Road, Harrogate, North Yorkshire, HG1
- SIZE AVAILABLE
200 sq ft
19 sq m
- SECTOR
Office to lease
Lease details
- Lease available date:
- Ask agent
Key features
- All-inclusive office suites
- Contact for availability
- Within a serviced office building
- Modern décor throughout
Description
55 Grove Road is a serviced office building that has brought together the old with the new, retaining many of the fantastic original features of the building when converted, alongside more modern finishes - offices don't have to be bland and boring.
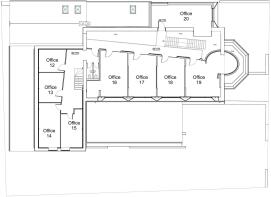
There are 20 offices in total ranging in size from 11m2 to over 30m2 and are offered on an all inclusive basis, the rents are to include; all utilities, rates, a full time receptionist, high speed Internet and furniture among other things.
The suites are designed to offer the greatest level of flexibility allowing for spaces to be combined to offer larger units if required.
Current availability is as follows:
Suite 2 (226 sq ft) £11,700 PA + VAT
Suite 8 (258 sq ft) £11,700 PA + VAT
Suite 9 (237 sq ft) £11,700 PA + VAT
Suite 17 (237 sq ft) £12,000 PA + VAT
Please refer to the floorplans for position of each suite within the building and do give our office a call to discuss further or arrange a viewing.
Proceeding up Kings Road, take the right hand turn immediately after St Luke's Church and 55 Grove Road can be found on the left as you follow the road round with a number of amenities surrounding including Sainsbury's Local, café Devine and Little Bread's.
Proceeding up Kings Road, take the right hand turn immediately after St Luke's Church and 55 Grove Road can be found on the left as you follow the road round with a number of amenities surrounding including Sainsbury's Local, café Devine and Little Bread's.
Terms: Leasehold. The suites are available on a new lease the terms of which are to be negotiated.
Rateable Value: Please refer to the VOA.
For the 2026/27 rating year, business rates are calculated using a tiered multiplier system. For properties with a Rateable Value below £51,000, multipliers range from approximately 38.2p for qualifying Retail, Hospitality and Leisure uses to 43.2p for other property types, subject to eligibility.
Small business rate relief may also be available.
Interested parties should make their own enquiries with North Yorkshire Council to confirm the exact rates payable. FSS accepts no liability for any changes to business rates or the accuracy of this information.
VAT: There is VAT payable.
Legal Costs: Unless expressly stated all parties will be responsible for their own legal costs in connection with this transaction.
Planning: Interested parties are advised to make their own enquiries of the local planning authority in respect of planning proposals if any change of use is envisaged.
Viewing: If you would like to view this property, please contact FSS on and we will be pleased to make an appointment.
Brochures
Grove Road, Harrogate, North Yorkshire, HG1
NEAREST STATIONS
Distances are straight line measurements from the centre of the postcode- Harrogate Station0.5 miles
- Starbeck Station1.4 miles
- Hornbeam Park Station1.4 miles
Notes
Disclaimer - Property reference COM230107_L. The information displayed about this property comprises a property advertisement. Rightmove.co.uk makes no warranty as to the accuracy or completeness of the advertisement or any linked or associated information, and Rightmove has no control over the content. This property advertisement does not constitute property particulars. The information is provided and maintained by Feather Smailes Scales Commercial, North Yorkshire. Please contact the selling agent or developer directly to obtain any information which may be available under the terms of The Energy Performance of Buildings (Certificates and Inspections) (England and Wales) Regulations 2007 or the Home Report if in relation to a residential property in Scotland.
Map data ©OpenStreetMap contributors.





