
Carrick Castle Church, Carrick Castle, Lochgoilhead, Argyll, PA24 8AF
- PROPERTY TYPE
Land
- BEDROOMS
4
- BATHROOMS
2
- SIZE
Ask agent
Key features
- 75 MINUTES FROM GLASGOW
- WATERSIDE COASTAL PLOT
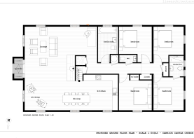
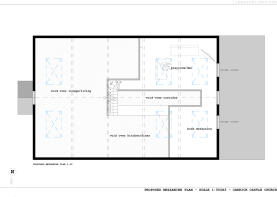
- TIN CHURCH WITH PLANNING TO CONVERT TO 4/6 BEDROOM HOUSE CURRENTLY APPLYING FOR RENEWAL: 2024/0210/L
- LARGE GROUNDS
- NEARBY WEDDING VENUES; CARRICK CASTLE ESTATE WEDDINGS & LODGE ON LOCH GOIL
- EXCELLENT LOCAL ACTIVITIES AND FACILITIES
- STRIKING ARCHITECT DESIGNS
- SUPERB HOLIDAY LETTING PROJECT
- ICONIC & HISTORIC BUILDING
- STUNNING SEA LOCH AND MOUNTAIN RANGE VIEWS
Description
TIN TABERNACLE CHURCH SET ON THE BANKS OF LOCH GOIL 75 MINUTES FROM GLASGOW WITH FULL PLANNING PERMISSION GRANTED & VALID TOGETHER WITH BUILDING WARRANT FOR CONVERSION TO A 4 BEDROOM FAMILY HOME OR HOLIDAY HOME/VENUE. SET IN A GENEROUS PLOT OF CIRCA 0.4 ACRES WITH SITE ENJOYS UNINTERRUPTED VIEWS OF THE COASTLINE, SEA LOCH AND THE SURROUNDING MOUNTAIN RANGES.
This glorious west coast building plot is set in a cul-de-sac, peninsula location with simply stunning coastal and wild rural views 360 degrees. Set just 75 minutes from Glasgow and accessible by road and sea, the surrounding area offers convenience shopping at nearby Lochgoilhead [10 mins drive], leisure facilities including spa and swimming pool at Drimsynie Estate Holiday Park [10 mins drive], Loch Fyne Oyster Bar [30 mins drive] & Inveraray [40 mins drive]. Other activities available nearby include; Loch Goil Cruisers Boat Hire, Argyll Voyageurs Canoe Hire, Lochgoilhead Kayak Hire, Carrick Laser Clays & Argyll Bike Hire.
C Listed Carrick Castle Church (formerly Church of Scotland) Current Detailed Planning Consent, Listed Building Consent and Building Warrant for full refurbishment and conversion to residential dwelling. Listed building consent for creating new window openings, replacing cladding, replacing all windows and doors. Siting within its own 0.4 acre site with uninterrupted views across Loch Goil and large south facing garden areas. 5% VAT rate on refurbishment and possible Local Authority Grants. Planning permission and Listed Building Consent will be renewed/extended prior to sale.
Nb. The planning permission is currently being renewed but will be in place when sold: Planning Application Reference: 2024/0210/LBC
Carrick Castle Church, Carrick Castle, Lochgoilhead, Argyll, PA24 8AF
NEAREST STATIONS
Distances are straight line measurements from the centre of the postcode- Garelochhead Station4.0 miles
Notes
Disclaimer - Property reference 103029002191. The information displayed about this property comprises a property advertisement. Rightmove.co.uk makes no warranty as to the accuracy or completeness of the advertisement or any linked or associated information, and Rightmove has no control over the content. This property advertisement does not constitute property particulars. The information is provided and maintained by Ivy Property, Glasgow. Please contact the selling agent or developer directly to obtain any information which may be available under the terms of The Energy Performance of Buildings (Certificates and Inspections) (England and Wales) Regulations 2007 or the Home Report if in relation to a residential property in Scotland.
Map data ©OpenStreetMap contributors.







