
Plot for sale
Peat Inn, Cupar, Fife, KY15
- PROPERTY TYPE
Plot
- SIZE
Ask agent
Key features
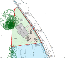
- Plot of Land for sale
- Approx 820 sqm | Planning in Principle
- Fantastic Countryside Location
Description
With stunning countryside views, this generous plot in a sought after hamlet in North East Fife is available to purchase! With planning in principle for a detached house, the plot extends to approximately 820 square metres, with private access and allowing ample parking.
Planning information available on request.
Peat Inn is a small hamlet located 6 miles from St Andrews, and 7 miles from Cupar. St Andrews offers an excellent range of facilities, along with a highly regarded university. Cupar, which is a bustling market town provides a good range of services. Dundee is within a 30-minute drive to the north with Edinburgh just over an hour to the south. Peat Inn is located within some beautiful Fife countryside, comprising a lovely mix of fertile farmland, woodland, hill, stunning coastline, and rivers and provides an area offering access to a wide range of recreational pursuits including riding, cycling, walking, sailing and golf. There are many highly rated golf courses within easy reach, including the renowned Links courses in and around St Andrews. State schooling is available locally with private schooling being provided at St Leonards in St Andrews. There are railway stations at Cupar, Leuchars, Ladybank, Markinch and Kirkcaldy, with Edinburgh airport just an hour away.
IMPORTANT NOTE TO POTENTIAL PURCHASERS & TENANTS:
We endeavour to make our particulars accurate and reliable, however, they do not constitute or form part of an offer or any contract and none is to be relied upon as statements of representation or fact. The services, systems and appliances listed in this specification have not been tested by us and no guarantee as to their operating ability or efficiency is given. All photographs and measurements have been taken as a guide only and are not precise. Floor plans where included are not to scale and accuracy is not guaranteed. If you require clarification or further information on any points, please contact us, especially if you are traveling some distance to view. POTENTIAL PURCHASERS: Fixtures and fittings other than those mentioned are to be agreed with the seller. POTENTIAL TENANTS: All properties are available for a minimum length of time, with the exception of short term accommodation. Please contact the branch for details. A security deposit of at least one month’s rent is required. Rent is to be paid one month in advance. It is the tenant’s responsibility to insure any personal possessions. Payment of all utilities including water rates or metered supply and Council Tax is the responsibility of the tenant in most cases.
GLE240104/2
Brochures
Web DetailsPeat Inn, Cupar, Fife, KY15
NEAREST STATIONS
Distances are straight line measurements from the centre of the postcode- Cupar Station5.4 miles
Notes
Disclaimer - Property reference GLE240104. The information displayed about this property comprises a property advertisement. Rightmove.co.uk makes no warranty as to the accuracy or completeness of the advertisement or any linked or associated information, and Rightmove has no control over the content. This property advertisement does not constitute property particulars. The information is provided and maintained by YOUR MOVE, Glenrothes. Please contact the selling agent or developer directly to obtain any information which may be available under the terms of The Energy Performance of Buildings (Certificates and Inspections) (England and Wales) Regulations 2007 or the Home Report if in relation to a residential property in Scotland.
Map data ©OpenStreetMap contributors.









