Land for sale
Holwell Business Park, Welby Road, Asfordby Hill, Melton Mowbray, Leicestershire, LE14
- SIZE AVAILABLE
1,916,640 sq ft
178,062 sq m
- SECTOR
Land for sale
Description
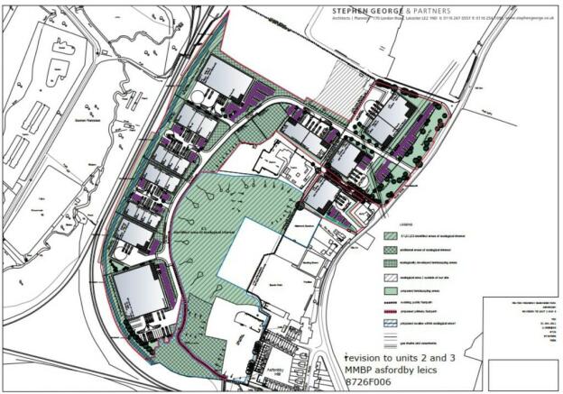
The site extends to 44 Acres (17.81 Ha) or thereabouts. The site is an area of current scrubland and former industrial land on the north and west side of Asfordby Hill which has been identified for employment use for a significant period of time without development.
The site has been identified in the Asfordby Neighbourhood Plan project name, A22 Holwell Business Park, as an area for mixed development, including employment, commercial, business and service uses under Class E together with local community uses under Class F2 and residential uses up to 100 dwellings.
The site was also subject to an historic planning consent 12/00846/EXT which was an extension for the original outline planning approval 09/00356/OUT which gave consent for development of 35,080 sq m of Class B1(C), B2 and B8 industrial and warehouse units with parking and servicing area also construction of access road with cycleway and footpath, ancillary works and landscaping.
The site is a substantial area of land forming part of the former Holwell Works with access from Welby Road, at the edge of Asfordby Hill village and existing commercial facilities, including a Readymix concrete batching plant and BE Event and Hire.
The site also abuts Holwell Sports and Social Club including football and bowls facilities. Holwell was a former ironworks active from 1875 up until the mid-1960s.
Brochures
Holwell Business Park, Welby Road, Asfordby Hill, Melton Mowbray, Leicestershire, LE14
NEAREST STATIONS
Distances are straight line measurements from the centre of the postcode- Melton Mowbray Station1.7 miles
Notes
Disclaimer - Property reference 2764FH. The information displayed about this property comprises a property advertisement. Rightmove.co.uk makes no warranty as to the accuracy or completeness of the advertisement or any linked or associated information, and Rightmove has no control over the content. This property advertisement does not constitute property particulars. The information is provided and maintained by MATHER JAMIE LIMITED, Loughborough. Please contact the selling agent or developer directly to obtain any information which may be available under the terms of The Energy Performance of Buildings (Certificates and Inspections) (England and Wales) Regulations 2007 or the Home Report if in relation to a residential property in Scotland.
Map data ©OpenStreetMap contributors.




