First & Second Floor, The Wool Exchange, Hustlergate, Bradford, BD1 1RE
- SIZE
Ask agent
- SECTOR
Commercial property for sale
Key features
- New lease available
- 20 individual offices/treatment rooms
- Approximately 11,000 sq.ft
- City centre location
- Potential for a variety of uses
- Beautiful Grade II Listed building. Exempt from EPC
- Christie & Co Ref: 5469143
Description
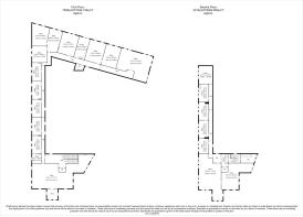
The first and second floors of the Wool Exchange offer 20 individual rooms along with a kitchen and toilet facilities. A couple of the rooms are larger and a couple are ideal as reception spaces or larger meeting rooms.
The location is ideal, entering the building off the street to the north of the property next to Waterstones, the building has its own private staircase.
The Grade II Listed Wool Exchange is situated in the historic Bradford City Centre, just outside the Broadway Shopping Centre. It is 0.3 miles from the Bradford Interchange and a short walk (0.2 miles) from the Bradford Puddle in the centre of the city.
Internal DetailsThe first floor comprises of 14 offices, kitchen area, toilet facilities, connecting hallway and lift from the ground floor.
The second floor comprises of six offices, kitchen area, toilet facilities, hallways and lift.
This vacant commercial space is housed within the beautiful Grade II Listed Wool Exchange, located ideally in the centre of Bradford and is suitable for a variety of professions, including a dental surgery, medical practice, offices, or other business uses. It is a large area covering approximately 11,000 sq ft and retains many of the building's period features, such as staircases and windows.
TenancyNew Lease on negotiable terms.
Business RatesConfirmation of business rates payable should be obtained from the local authority.
Brochures
First & Second Floor, The Wool Exchange, Hustlergate, Bradford, BD1 1RE
NEAREST STATIONS
Distances are straight line measurements from the centre of the postcode- Bradford Forster Square Station0.2 miles
- Bradford Interchange Station0.2 miles
- Frizinghall Station1.9 miles
Notes
Disclaimer - Property reference 5469143-lh. The information displayed about this property comprises a property advertisement. Rightmove.co.uk makes no warranty as to the accuracy or completeness of the advertisement or any linked or associated information, and Rightmove has no control over the content. This property advertisement does not constitute property particulars. The information is provided and maintained by Christie & Co, Pubs & Restaurants. Please contact the selling agent or developer directly to obtain any information which may be available under the terms of The Energy Performance of Buildings (Certificates and Inspections) (England and Wales) Regulations 2007 or the Home Report if in relation to a residential property in Scotland.
Map data ©OpenStreetMap contributors.





