
Development Site, Toronto Road, Exeter
- PROPERTY TYPE
Plot
- BEDROOMS
9
- BATHROOMS
6
- SIZE
Ask agent
Key features
- Development Site
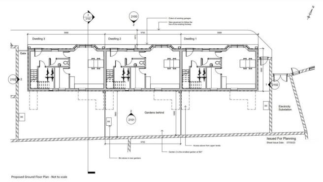
- Planning Permission for 3 x Terraced Houses
- First Floor Balconies to Rear
- Cul-de-Sac Position
- Excellent Location for access to the City Centre
Description
Toronto Road offers a cul-de-sac position within this highly sought-after and convenient location with great access to the City Centre, the University of Exeter and other local amenities.
Full planning information can be found on the Exeter City Council web site using application 23/0653/FUL.
Planning Documents - Full planning information can be found on the Exeter City Council web site using application 23/0653/FUL.
Further Information - Contact Naomi J Ryan Estate Agents on .
Referral Fee Disclosure - We recommend sellers and/or potential buyers use the services of The Mortgage Quarter. Should you decide to use the services of The Mortgage Quarter you should know that we would expect to receive a referral fee of £200 from them for recommending you to them. You are not under any obligation to use the services and can seek alternative providers of these services. Further information is available on our web site.
Agents Note - We hereby declare that the vendor of this property has an association with Naomi J Ryan Estate Agents.
Brochures
Development Site, Toronto Road, ExeterBrochureDevelopment Site, Toronto Road, Exeter
NEAREST STATIONS
Distances are straight line measurements from the centre of the postcode- St James Park Station0.2 miles
- Polsloe Bridge Station0.7 miles
- Exeter Central Station0.7 miles
Notes
Disclaimer - Property reference 33035575. The information displayed about this property comprises a property advertisement. Rightmove.co.uk makes no warranty as to the accuracy or completeness of the advertisement or any linked or associated information, and Rightmove has no control over the content. This property advertisement does not constitute property particulars. The information is provided and maintained by Naomi J Ryan, Exeter. Please contact the selling agent or developer directly to obtain any information which may be available under the terms of The Energy Performance of Buildings (Certificates and Inspections) (England and Wales) Regulations 2007 or the Home Report if in relation to a residential property in Scotland.
Map data ©OpenStreetMap contributors.








