Widford Road, Much Hadham

- PROPERTY TYPE
Detached
- BEDROOMS
7
- BATHROOMS
5
- SIZE
8,200 sq ft
762 sq m
- TENUREDescribes how you own a property. There are different types of tenure - freehold, leasehold, and commonhold.Read more about tenure in our glossary page.
Freehold
Description
Enter via the grand entrance hallway, with two large reception rooms on either side both featuring front-aspect bay windows and cast-iron feature fireplaces. The kitchen really is the hub of the home, displaying vaulted ceilings, exposed beams, a range of base/eye level units, central kitchen island and French doors out to the garden. The kitchen is served by a separate utility room and pantry. The remaining ground floor consists of a large rear aspect sitting room with feature log-burning fireplace, study and cloakroom/WC.
To the first floor, the impressive landing provides access to the four double bedrooms, including the 20ft principal suite with its own four-piece en-suite, feature fireplace and fantastic views over the grounds. The remaining bedrooms are served by one further en-suite and a Jack & Jill shower room.
To the second floor, there are a further three double bedrooms and two en-suite bathrooms. Each of the bedrooms are accessed via separate staircases.
Moving externally, the grounds extend to circa 3.5 acres and wrap around the house on all sides. The gardens have been well landscaped over the years to provide numerous entertainment areas depending on the time of year and occasion. The front of the property provides a gated sweeping driveway with copious amounts of space for cars.
Much Hadham is a highly desirable and award-winning village with local shop, stunning countryside walks and one of the best state primary schools in Hertfordshire St. Andrews School. Located just a 10-minute drive to the Towns of Ware and Bishop Stortford, both with train links into London's Liverpool Street.
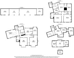
- Hadham Mill - -
- Ground Floor - -
Entrance Lobby -
Entrance Hallway -
Living Room - 8.93m x 5.81m (29'3" x 19'0") -
Dining Room - 7.09m x 5.62m (23'3" x 18'5") -
Cloakroom/Wc -
Kitchen/Dining Room - 9.39m x 5.35m (30'9" x 17'6") -
Utility Room -
Pantry -
Sitting Room - 4.95m x 6.73m (16'2" x 22'0") -
Study - 5.76m x 3.42m (18'10" x 11'2") -
- First Floor - -
Landing -
Bedroom One - 5.84m x 5.67m (19'1" x 18'7") -
En-Suite -
Bedroom Two - 5.78m x 5.89m (18'11" x 19'3") -
Jack & Jill Bathroom -
Bedroom Three -
Bedroom Four - 5.73m x 3.68m (18'9" x 12'0") -
Walk-In Wardrobe -
En-Suite -
- Second Floor - -
Bedroom Five - 5.51m x 3.67m (18'0" x 12'0") -
En-Suite -
Bedroom Six -
Bedroom Seven - 5.03m x 6.60m (16'6" x 21'7") -
Family Bathroom -
- Exterior - -
2-Bedroom Annexe -
Storage - 4.86m x 6.32m (15'11" x 20'8") -
Car Port One - 4.59m x 7.52m (15'0" x 24'8") -
Car Port Two - 4.59m x 12.97m (15'0" x 42'6") -
Gym - 4.59m x 4.64m (15'0" x 15'2") -
Brochures
Widford Road, Much Hadham- COUNCIL TAXA payment made to your local authority in order to pay for local services like schools, libraries, and refuse collection. The amount you pay depends on the value of the property.Read more about council Tax in our glossary page.
- Band: F
- LISTED PROPERTYA property designated as being of architectural or historical interest, with additional obligations imposed upon the owner.Read more about listed properties in our glossary page.
- Listed
- PARKINGDetails of how and where vehicles can be parked, and any associated costs.Read more about parking in our glossary page.
- Yes
- GARDENA property has access to an outdoor space, which could be private or shared.
- Yes
- ACCESSIBILITYHow a property has been adapted to meet the needs of vulnerable or disabled individuals.Read more about accessibility in our glossary page.
- Ask agent
Energy performance certificate - ask agent
Widford Road, Much Hadham
Add an important place to see how long it'd take to get there from our property listings.
__mins driving to your place
Get an instant, personalised result:
- Show sellers you’re serious
- Secure viewings faster with agents
- No impact on your credit score
Your mortgage
Notes
Staying secure when looking for property
Ensure you're up to date with our latest advice on how to avoid fraud or scams when looking for property online.
Visit our security centre to find out moreDisclaimer - Property reference 33070965. The information displayed about this property comprises a property advertisement. Rightmove.co.uk makes no warranty as to the accuracy or completeness of the advertisement or any linked or associated information, and Rightmove has no control over the content. This property advertisement does not constitute property particulars. The information is provided and maintained by Simply Homes, Hertford. Please contact the selling agent or developer directly to obtain any information which may be available under the terms of The Energy Performance of Buildings (Certificates and Inspections) (England and Wales) Regulations 2007 or the Home Report if in relation to a residential property in Scotland.
*This is the average speed from the provider with the fastest broadband package available at this postcode. The average speed displayed is based on the download speeds of at least 50% of customers at peak time (8pm to 10pm). Fibre/cable services at the postcode are subject to availability and may differ between properties within a postcode. Speeds can be affected by a range of technical and environmental factors. The speed at the property may be lower than that listed above. You can check the estimated speed and confirm availability to a property prior to purchasing on the broadband provider's website. Providers may increase charges. The information is provided and maintained by Decision Technologies Limited. **This is indicative only and based on a 2-person household with multiple devices and simultaneous usage. Broadband performance is affected by multiple factors including number of occupants and devices, simultaneous usage, router range etc. For more information speak to your broadband provider.
Map data ©OpenStreetMap contributors.




