
Portwrinkle, Crafthole, Cornwall, PL11

- PROPERTY TYPE
Detached
- BEDROOMS
4
- BATHROOMS
2
- SIZE
Ask agent
- TENUREDescribes how you own a property. There are different types of tenure - freehold, leasehold, and commonhold.Read more about tenure in our glossary page.
Freehold
Key features
- Sea View
- Coastal Location
- Generous Accommodation
- Four Bedrooms
- Two Bath/Shower Rooms
- Lawned Gardens
- Double Garage
- Driveway Parking
Description
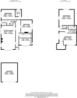
This grand property is entered through the front door into a spacious central hallway. Exposed wooden floorboards, stairs that rise to the first floor, doors off to a utility room, the rest of the accommodation and a further external door leading on to the rear garden.
Magnificent sea and coastal views are enjoyed from every room, bar the bathrooms, in this tardis of a 1920's house in a prime position, 100m from the beach, in the area of outstanding natural beauty of the Rame Peninsula and the village of Portwrinkle.
Externally, this grand property belies its true size, housing double bedrooms, an expansive double aspect lounge and wonderfully social kitchen along with a family bathroom and a first floor shower room.
The property is entered through the front storm porch into a spacious central hallway with exposed wooden floorboards running the entire length. Doors off to the downstairs accommodation and an external door leading out to the rear patio.
The dual aspect bay windows, with window seats, provide the lounge with unbroken sea views, from Rame Head in the East to Looe and Mevagissey in the West, and the famous Eddystone lighthouse to the South. This wonderfully warm family room encapsulates the ambience of this Art Deco property with feature open fire place set on a Cornish stone hearth with period pine mantle over. The room would provide plenty of room for entertaining.
The exceptionally social, dual aspect, kitchen benefits from the same magnificent sea views as the lounge through a huge bay window which again provides window seating. The shaker style limed oak, base and wall units along with a large dresser provide plenty of storage. Eye-level electric double oven, 4 ring gas hob with extractor hood over, ceramic sink, space for a dishwasher and tiled splashback complete the kitchen appliances. There is sufficient space for a large family table to socialise around.
Bedroom four is currently used as a music room (snug/lounge) accommodating a 2.8m x 1.7m L-shaped sofa. Window overlooks the side garden and has views to the east of the sea. This room could be incorporated into the kitchen to make a truly exceptional entertaining space.
Bedroom three is at the rear of the house with views out to the western side of the garden and the sea to the front. This room houses a queen size bed and bedroom furniture with plenty of space still available to fill.
The utility room houses the Worcester Bosch central heating boiler, has plumbing for a washing machine and American Fridge/Freezer with icemaker, space for tumble dryer. The family bathroom comprises of panel bath with shower over, a low-level WC and a pedestal wash hand basin. Tiling to walls and opaque double glazed window to the rear.
There are commanding sea and coastline views from the first floor landing with doors to the master bedroom, bedroom two and the first floor shower room.
The views from the master bedroom are the most impressive as a different perspective of the coastline is afforded from this window. This bedroom houses a super-king size bed with plenty of room around it and benefits from a walk-in wardrobe.
Bedroom two is dual aspect with views over the rear garden and the sea. This room also houses a super-king size bed and a double sofa bed, again with plenty of space for further bedroom furniture. This room could be split into two if required.
The shower room offers a double shower cubicle with mains shower, a low-level WC with hidden cistern and a wash hand basin set into a vanity unit with storage beneath. A skylight offers the experience of 'a shower beneath the stars'.
The property sits at the centre of its plot with lawn to all sides and mature shrubs and trees to the boundaries. There is a private decked area at the front to sit and hear the crashing/lapping of the waves on the shore. There is a further patio area at the rear of the garden along with an area for a vegetable patch or some raised beds.
A driveway allows parking for two cars and leads to a double garage with power, lighting and an electric roller-shutter door.
- COUNCIL TAXA payment made to your local authority in order to pay for local services like schools, libraries, and refuse collection. The amount you pay depends on the value of the property.Read more about council Tax in our glossary page.
- Ask agent
- PARKINGDetails of how and where vehicles can be parked, and any associated costs.Read more about parking in our glossary page.
- Yes
- GARDENA property has access to an outdoor space, which could be private or shared.
- Yes
- ACCESSIBILITYHow a property has been adapted to meet the needs of vulnerable or disabled individuals.Read more about accessibility in our glossary page.
- Ask agent
Portwrinkle, Crafthole, Cornwall, PL11
Add an important place to see how long it'd take to get there from our property listings.
__mins driving to your place
Get an instant, personalised result:
- Show sellers you’re serious
- Secure viewings faster with agents
- No impact on your credit score
Your mortgage
Notes
Staying secure when looking for property
Ensure you're up to date with our latest advice on how to avoid fraud or scams when looking for property online.
Visit our security centre to find out moreDisclaimer - Property reference SAL220094. The information displayed about this property comprises a property advertisement. Rightmove.co.uk makes no warranty as to the accuracy or completeness of the advertisement or any linked or associated information, and Rightmove has no control over the content. This property advertisement does not constitute property particulars. The information is provided and maintained by Ideal Homes, Torpoint. Please contact the selling agent or developer directly to obtain any information which may be available under the terms of The Energy Performance of Buildings (Certificates and Inspections) (England and Wales) Regulations 2007 or the Home Report if in relation to a residential property in Scotland.
*This is the average speed from the provider with the fastest broadband package available at this postcode. The average speed displayed is based on the download speeds of at least 50% of customers at peak time (8pm to 10pm). Fibre/cable services at the postcode are subject to availability and may differ between properties within a postcode. Speeds can be affected by a range of technical and environmental factors. The speed at the property may be lower than that listed above. You can check the estimated speed and confirm availability to a property prior to purchasing on the broadband provider's website. Providers may increase charges. The information is provided and maintained by Decision Technologies Limited. **This is indicative only and based on a 2-person household with multiple devices and simultaneous usage. Broadband performance is affected by multiple factors including number of occupants and devices, simultaneous usage, router range etc. For more information speak to your broadband provider.
Map data ©OpenStreetMap contributors.





