5 bedroom detached house for sale
Mogador, Surrey

- PROPERTY TYPE
Detached
- BEDROOMS
5
- BATHROOMS
4
- SIZE
5,287 sq ft
491 sq m
- TENUREDescribes how you own a property. There are different types of tenure - freehold, leasehold, and commonhold.Read more about tenure in our glossary page.
Freehold
Key features
- Idyllic detached family home
- Situated within approximately 2.5 acres of grounds
- Modernised throughout
- 4 Bedrooms within the house
- Outbuilding with gym, office, bedroom and shower room.
- Two double garages
- Two private gates
- Gardens comprising multiple lawns, maturing flower beds, vegetable patches and more
- Old stable block currently being used as storage
- Approximately an acre and a half of woodland consisting of clearings and mature woodland
Description
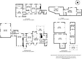
The ground floor has been designed with one thing in mind, the incredible outlook to the rear of the property, and is undeniably effective. The main living room is a large entertaining space, with two large picture windows to the rear, as well as a shower room and French doors out to an outdoor entertaining area. The Neptune kitchen has units in "Neptune Grey Oak", contrasting against the white quartz worktop on the kitchen island. Adjoining the kitchen is the beautiful new addition of a garden room, featuring two walls of glass, providing the perfect vantage point for views over the garden. The ground floor also features a dining space, a formal sitting room, a downstairs w/c and utility room.
Upstairs the principle bedroom is located at the western end of the house, with a generous ensuite, and walk-in wardrobe. The remaining double bedrooms are found along the rear of the house to make the most of the garden views, along with a family bathroom.
The house is amazing, though in this case it’s only part of the story, for the property benefits from a number of outbuildings, including one to the front of the house featuring a home office, gym area, additional shower room and a guest bedroom. There are also two double garages, a greenhouse, and an old stable block. The block is currently used for garden storage, though vehicle access and the nature of the property means it could easily be converted back into functional stables. The gardens are vast, and strike a perfect balance between practicality for human use, and consideration for wildlife, pollinators, and biodiversity. The patio areas to the rear of the house are perfectly situated for socialising and soaking up the sun, with an outdoor kitchen, seating areas, and feature pond all adding to the atmosphere. To the front of the house, the property benefits from two large private gates, the owners tend to use one in, and one out. The house has one more trick up its sleeve, a further acre and a half of woodland sits alongside the formal gardens, full of bluebells and wildlife, it truly is idyllic. The area is a balance of forest clearings, and mature trees, and some denser areas of vegetation. It's been brought to our attention that this space combined with the stable block would lend the property perfectly to equestrian use.
Mogador is a quiet Surrey hamlet situated on the top of Colley Hill between Reigate and Tadworth Village and whilst it benefits from rural life it also enjoys the convenience of being on the edge of both villages and Towns all within several minutes’ drive. Surrounded by extensive National Trust walks and situated within an Area of Outstanding Natural Beauty there are also many local livery stables whilst Walton Heath, Kingswood and Surrey Downs golf courses are within a few miles. Mogador is conveniently situated within easy reach of Junction 8 of the M25 providing access to Gatwick and Heathrow. There are many outstanding schools in the area with Royal Alexander and Albert School, Epsom College, St Johns school, City of London Freeman’s, St Bedes, and The Priory CofE schools close by. Local amenities at the neighbouring village of Tadworth cater for day to day needs whilst more extensive shopping and recreational facilities can be found in the nearby towns of Reigate, Dorking or Epsom, all of which offer mainline train services to London Victoria and Waterloo. The village of Merstham is also a short drive, with a station offering parking and a line directly up to London Victoria via Clapham Junction, London Bridge and Black Friars to name a few.
If you require further information or wish to view this beautiful home, please contact a member of our sales team.
Brochures
Mogador, SurreyBrochure- COUNCIL TAXA payment made to your local authority in order to pay for local services like schools, libraries, and refuse collection. The amount you pay depends on the value of the property.Read more about council Tax in our glossary page.
- Band: G
- PARKINGDetails of how and where vehicles can be parked, and any associated costs.Read more about parking in our glossary page.
- Yes
- GARDENA property has access to an outdoor space, which could be private or shared.
- Yes
- ACCESSIBILITYHow a property has been adapted to meet the needs of vulnerable or disabled individuals.Read more about accessibility in our glossary page.
- Ask agent
Mogador, Surrey
Add an important place to see how long it'd take to get there from our property listings.
__mins driving to your place
Get an instant, personalised result:
- Show sellers you’re serious
- Secure viewings faster with agents
- No impact on your credit score



Your mortgage
Notes
Staying secure when looking for property
Ensure you're up to date with our latest advice on how to avoid fraud or scams when looking for property online.
Visit our security centre to find out moreDisclaimer - Property reference 33116858. The information displayed about this property comprises a property advertisement. Rightmove.co.uk makes no warranty as to the accuracy or completeness of the advertisement or any linked or associated information, and Rightmove has no control over the content. This property advertisement does not constitute property particulars. The information is provided and maintained by Kennedys, Tadworth- Sales. Please contact the selling agent or developer directly to obtain any information which may be available under the terms of The Energy Performance of Buildings (Certificates and Inspections) (England and Wales) Regulations 2007 or the Home Report if in relation to a residential property in Scotland.
*This is the average speed from the provider with the fastest broadband package available at this postcode. The average speed displayed is based on the download speeds of at least 50% of customers at peak time (8pm to 10pm). Fibre/cable services at the postcode are subject to availability and may differ between properties within a postcode. Speeds can be affected by a range of technical and environmental factors. The speed at the property may be lower than that listed above. You can check the estimated speed and confirm availability to a property prior to purchasing on the broadband provider's website. Providers may increase charges. The information is provided and maintained by Decision Technologies Limited. **This is indicative only and based on a 2-person household with multiple devices and simultaneous usage. Broadband performance is affected by multiple factors including number of occupants and devices, simultaneous usage, router range etc. For more information speak to your broadband provider.
Map data ©OpenStreetMap contributors.




