Commercial property for rent
207 Ashley Road
Letting details
- Let available date:
- Now
- PROPERTY TYPE
Commercial Property
- SIZE
Ask agent
Key features
- FORMER BANK
- PRIME CORNER POSITION
- HIGH FOOTFALL
- PARKING
- OUTSIDE AREA TO FRONT
- HIGH VISABILITY
- CLASS E
Description
LOCATION:
Poole is a coastal town in Dorset, known for being a popular tourist destination with its large natural harbour. The town adjoins Bournemouth in the east, and has a population of c.140,000 (2021). Ashley Road offers a mixture of residential and commercial accommodation with a number of national retailers operating including Boots Pharmacy, Co-operative Foods, Greggs and Iceland along with Waitrose. There is a variety of local occupiers such as coffee shops, hairdressers, estate agents, delicatessens, hot food takeaways and dental practises. Poole Retail Park is nearby comprising c.208,000 sq ft of retailing space. Tenants include John Lewis, Next and
HomeSense.
Description
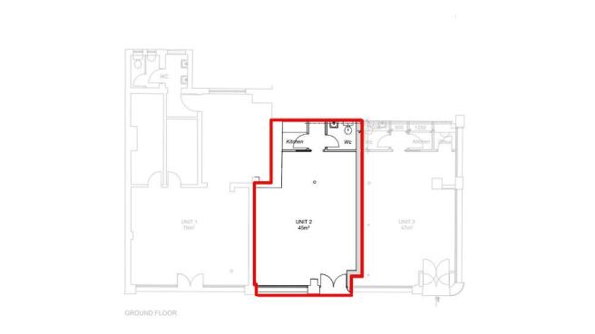
The property comprises a ground floor commercial premises providing a relatively open-plan frontage, formerly used as a bank. See floorplan which indicates existing partitioning and toilet facilities.
207 Ashley Road
NEAREST STATIONS
Distances are straight line measurements from the centre of the postcode- Branksome Station0.6 miles
- Parkstone Station0.8 miles
- Poole Station2.3 miles

Notes
Disclaimer - Property reference 1001030. The information displayed about this property comprises a property advertisement. Rightmove.co.uk makes no warranty as to the accuracy or completeness of the advertisement or any linked or associated information, and Rightmove has no control over the content. This property advertisement does not constitute property particulars. The information is provided and maintained by Clearwater Sales and Lettings, Poole. Please contact the selling agent or developer directly to obtain any information which may be available under the terms of The Energy Performance of Buildings (Certificates and Inspections) (England and Wales) Regulations 2007 or the Home Report if in relation to a residential property in Scotland.
Map data ©OpenStreetMap contributors.




