
Land for sale
Tynron, Thornhill, DG3
- PROPERTY TYPE
Land
- SIZE
Ask agent
Key features
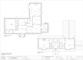
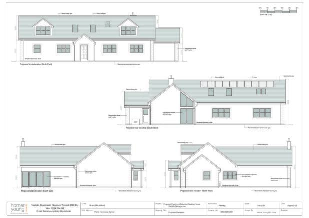
- Full Planning Permission Granted
- Planning Reference Number 23/1813/FUL
- Foundations Already in Place
- Close Proximity Of Neighbouring Village Thornhill
- Rural Location
- Design And Build Your Own Home
- Always Dreamed Of Building Your Own Home?
- Plot Of Land
Description
This approx 3330sqm plot is situated in the historic iron-age village of Tynron and is in close proximity to the neighbouring towns of Thornhill, Penpont and Moniavie.
The plot offers a unique opportunity for those looking to build and design their own home located in a rural yet beautiful setting. The plot does already have planning permission and the building warrant accepted for a 3/4 bed detached home to be built, absolutely perfect for a family. The foundations for the property have already been laid and a septic tank has already been installed, this has been completed by a local builder. Running alongside the plot is a small burn.
The main access point for the plot is down a private road with shared right of access, just off of the main road.
Viewing this plot is essential.
*Further information is available upon viewing. All enquires to our sales team at our local Dumfries Office - *
TRANSPORT, SCHOOLS & AMENITIES
This plot is situated in the small village of Tynron just a few miles away from the neighbouring villages and towns of Thornhill, Penpont and Moniave. The nearest primary schools and preschool nursery provision are in Moniave (2 miles) and the nearest secondary school is Wallace Hall Academy in Thornhill (7 miles). Moniavie is a vibrant community of self-employed artists and entrepreneurs with a village shop, pub, hotels, GP surgery, and countless community activities going on daily. There is a range of other leisure facilities available in nearby Thornhill including an 18-hole golf course, green bowling club, squash and tennis facilities. Thornhill also offers a range of local shops, a pharmacy, a health centre and dentists, bank, post office and a library. The local area is renowned for hill walking, mountain biking, fishing and wildlife. The area is steeped in history with the specular Drumlanrig Castle on the doorstep. At the same time, further facilities can be found in the region's capital of Dumfries which is only 17 miles away. There are other close transport links including Dumfries train station providing links to Carlisle and Glasgow. Major bus links can be accessed from the Loreburn Centre, Whitesand's or Burns Statue. The M6 and M74 networks are accessible at Moffat, Gretna and Lockerbie. Dumfries town centre offers several major supermarkets, popular high street shops, a shopping centre, schooling, a university campus and a range of eateries and medical facilities.
Disclaimer
Whilst we make enquiries with the Seller to ensure the information provided is accurate, Yopa makes no representations or warranties of any kind with respect to the statements contained in the particulars which should not be relied upon as representations of fact. All representations contained in the particulars are based on details supplied by the Seller. Your Conveyancer is legally responsible for ensuring any purchase agreement fully protects your position. Please inform us if you become aware of any information being inaccurate.
Tynron, Thornhill, DG3
NEAREST STATIONS
Distances are straight line measurements from the centre of the postcode- Sanquhar Station10.9 miles

Notes
Disclaimer - Property reference 392736. The information displayed about this property comprises a property advertisement. Rightmove.co.uk makes no warranty as to the accuracy or completeness of the advertisement or any linked or associated information, and Rightmove has no control over the content. This property advertisement does not constitute property particulars. The information is provided and maintained by Yopa, Scotland & The North. Please contact the selling agent or developer directly to obtain any information which may be available under the terms of The Energy Performance of Buildings (Certificates and Inspections) (England and Wales) Regulations 2007 or the Home Report if in relation to a residential property in Scotland.
Map data ©OpenStreetMap contributors.






