
Plot for sale
Cottingham Street, Goole
- PROPERTY TYPE
Plot
- SIZE
Ask agent
Key features
- Ten Dwellings & Three Apartments
- Development Plot
- Excellent Opportunity
- Commuter Links
Description
** DEVELOPMENT OPPORTUNITY ** EXCELLENT LOCATION FOR COMMUTERS ** Situated in Goole, this is a fantastic opportunity for any developers. More information can be found on the East Riding of Yorkshire Planning site:
East Riding of Yorkshire Council Planning
Reference Number(s):
11/01331/PLF
15/30174/CONDET
22/30250/CONDET
24/40045/NONMAT
Planning Reference Number(S) - East Riding of Yorkshire Council Planning Reference Number(s):
11/01331/PLF
15/30174/CONDET
22/30250/CONDET
24/40045/NONMAT
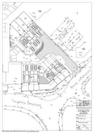
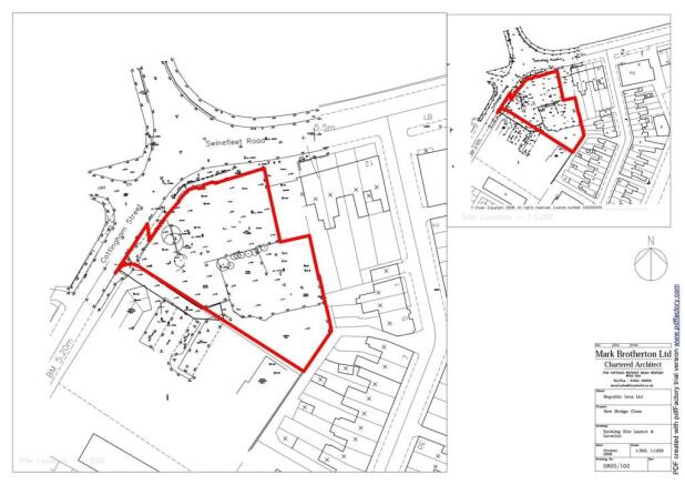
Site Plan And Landscaping - The proposed site allows for a total of ten dwellings and a building consisting of three apartments.
Overview - Welcome to Cottingham Street, Goole - a site brimming with potential! This site offers a fantastic development opportunity for those with a keen eye for investment. Situated in Goole, this site has the potential to be transformed into ten dwellings and three apartments, making it a lucrative prospect for those looking to expand their property portfolio. With its prime location and scope for development, this project is a rare find that promises great returns. Don't miss out on this exciting opportunity to turn this land into a thriving residential development!
Directions - From the Goole office on Pasture Road, head south and make a left turn onto Boothferry Road. Take a right onto Coronation Street, follow this on to Lower Bridge Street and then Bridge Street. Finally, take a right on to Cottingham Street where the land can be clearly identified by our Park Row 'For Sale' board.
Making An Offer - In order to comply with the Estate Agents (Undesirable Practises) Order 1991, Park Row Properties are required to verify "the status of any prospective purchaser... This includes the financial standing of that purchaser and his ability to exchange contracts". To allow us to comply with this order and before recommending acceptance of any offers, and subsequently making the property 'SOLD' each prospective purchaser will be required to demonstrate to 'Park Row Properties' that they are financially able to proceed with the purchase of the property.
We provide truly Independent Mortgage Advice. Unlike many companies we are not tied, and more importantly not targeted to any Lender. We have instant on-line access to over 1000 mortgage deals provided by over 100 Lenders ensuring we are unbeatable when identifying and recommending your new mortgage or re-mortgage requirements.
Your home is at risk if you do not keep up repayments on a mortgage or other loan secured on it. Written quotations available on request. Life assurance is usually required.
To arrange a no obligation appointment please contact your local office.
Measurements - These approximate room sizes are only intended as general guidance. You must verify the dimensions carefully before ordering carpets or any built-in furniture.
Opening Hours - CALLS ANSWERED :
Mon, Tues, Wed & Thurs - 9.00am to 8.00pm
Friday - 9.00am to 5.30pm
Saturday - 9.00am to 5.00pm
Sunday - 11.00am to 3.00pm
TO CHECK OFFICE OPENING HOURS PLEASE CONTACT THE RELEVANT BRANCHES ON:
SELBY -
GOOLE -
SHERBURN IN ELMET -
PONTEFRACT -
CASTLEFORD -
Viewings - Strictly by appointment with the sole agents.
If there is any point of particular importance to you we will be pleased to provide additional information or to make any further enquiries. We will also confirm that the property remains available. This is particularly important if you are travelling some distance to view the property.
Brochures
Cottingham Street, GooleBrochureCottingham Street, Goole
NEAREST STATIONS
Distances are straight line measurements from the centre of the postcode- Goole Station0.7 miles
- Saltmarshe Station3.3 miles
- Rawcliffe Station3.6 miles
Notes
Disclaimer - Property reference 33166643. The information displayed about this property comprises a property advertisement. Rightmove.co.uk makes no warranty as to the accuracy or completeness of the advertisement or any linked or associated information, and Rightmove has no control over the content. This property advertisement does not constitute property particulars. The information is provided and maintained by Park Row Properties, Goole. Please contact the selling agent or developer directly to obtain any information which may be available under the terms of The Energy Performance of Buildings (Certificates and Inspections) (England and Wales) Regulations 2007 or the Home Report if in relation to a residential property in Scotland.
Map data ©OpenStreetMap contributors.







