
Hyndshaw Road, Carluke
- PROPERTY TYPE
Land
- SIZE
Ask agent
Description
The site is located on Hyndshaw Road, an idyllic semi-sural location on the outskirts of Carluke yet only a few minutes drive to the bustling town centre.
Carluke has all the required facilities and amenities, including train station, modern high school and primary schools, modern health centre and also Tesco and Aldi stores. Lovely 18 hole golf course, bowling club, leisure centre with swimming pool. With good access to the Scottish Borders and the Clyde valley, providing excellent walks for the outdoor enthusiast including Tinto Hill and the Falls of Clyde. Carluke is much favoured particularly for those requiring good transport links, local train station and easy access to Glasgow and Edinburgh. Edinburgh City Bypass is only a thirty-minute drive away, giving access to East Central Scotland. The M74 is only a fifteen-minute journey giving access to Glasgow and the West if Scotland.
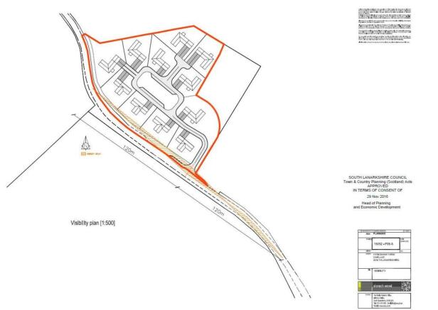
This partially serviced developable site is approximately 2.5 acres in total with outline planning permission for 11 detached dwelling houses.
For more information please visit the South Lanarkshire Council Planning and Building Standard website-
Application Number - CL/16/0377
Brochures
Hyndshaw Road, CarlukeHyndshaw Road, Carluke
NEAREST STATIONS
Distances are straight line measurements from the centre of the postcode- Carluke Station2.3 miles
- Wishaw Station2.9 miles
- Hartwood Station3.3 miles
Notes
Disclaimer - Property reference 33200686. The information displayed about this property comprises a property advertisement. Rightmove.co.uk makes no warranty as to the accuracy or completeness of the advertisement or any linked or associated information, and Rightmove has no control over the content. This property advertisement does not constitute property particulars. The information is provided and maintained by AB Properties, Lanarkshire. Please contact the selling agent or developer directly to obtain any information which may be available under the terms of The Energy Performance of Buildings (Certificates and Inspections) (England and Wales) Regulations 2007 or the Home Report if in relation to a residential property in Scotland.
Map data ©OpenStreetMap contributors.







