Residential development for sale
Chapel Lane, Folkingham, Sleaford, Lincs, NG34
- PROPERTY TYPE
Residential Development
- SIZE
Ask agent
Key features
- Excellent potential development opportunity
- Lapsed planning for 2 executive family houses
- Granted by SKDC on 19th January 2022
- Reference S21 / 2203
- Delightful quiet location
- Historic sought after village
- For sale subject to planning
- To be applied for by the buyer
Description
Excellent opportunity to purchase a potential residential development site in the heart of this historic and sought after village with lapsed planning for the erection of two individual family homes. The site enjoys a quiet location on Chapel Lane that runs parallel to the Market Place. Folkingham is a charming and pretty village with village store, public house and church but is conveniently positioned for access to a number of surrounding towns including Grantham some 15 miles to the West where there is both A1 road and intercity rail service. It also sits on the A15 affording good access to the City Of Peterborough to the South and Lincoln to the North.
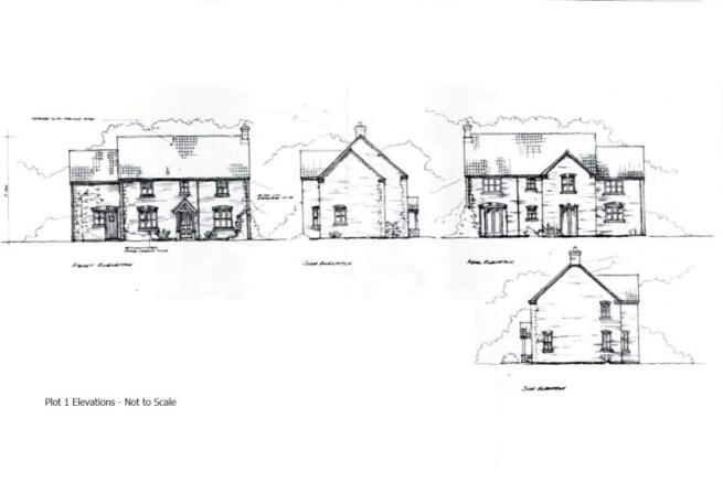
Planning Permission was previously passed by SKDC on 19th January 2022 under reference S21 / 2203 for the erection of 2 houses, double garages & associated site works. The proposed scheme shows two impressive four bedroom, three reception room detached houses with double garages.
LINK TO SKDC PLANNING PORTAL
AGENTS NOTE This planning permission has now lapsed and the site is being offered for sale subject to the buyer re applying for permisision.
Chapel Lane, Folkingham, Sleaford, Lincs, NG34
NEAREST STATIONS
Distances are straight line measurements from the centre of the postcode- Rauceby Station7.0 miles
Notes
Disclaimer - Property reference 10354366. The information displayed about this property comprises a property advertisement. Rightmove.co.uk makes no warranty as to the accuracy or completeness of the advertisement or any linked or associated information, and Rightmove has no control over the content. This property advertisement does not constitute property particulars. The information is provided and maintained by Pygott & Crone, Sleaford. Please contact the selling agent or developer directly to obtain any information which may be available under the terms of The Energy Performance of Buildings (Certificates and Inspections) (England and Wales) Regulations 2007 or the Home Report if in relation to a residential property in Scotland.
Map data ©OpenStreetMap contributors.




