1 bedroom flat for sale
Litten Tree House, CM7

- PROPERTY TYPE
Flat
- BEDROOMS
1
- SIZE
Ask agent
Key features
- Top Floor Apartment
- Ideal First time Buyers
- Perfect Investment Opportunity
- Close to Town Centre
- 0.5 Mile to mainline Train Station
- Open Plan
- Bike Store
- Communal Outside Space
- Central Heating
Description
Discover the ideal blend of style, convenience, and practicality with this impeccably maintained one-bedroom apartment, ready for immediate occupancy. Located in the heart of Braintree town centre, this property is a fantastic opportunity for first-time buyers starting their journey or investors looking to expand their portfolio.
The apartment's prime location is a standout, situated less than half a mile from the mainline station with direct links to Liverpool Street – perfect for commuters. With modern living spaces and an unbeatable central setting, this property offers both comfort and excellent connectivity.
Don’t miss this incredible chance to own a home that combines contemporary living with a strategic investment opportunity. Schedule your viewing today!
Property additional info
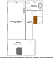
Kitchen/Lounge /Diner: 3.35m x 7.77m (11' x 25' 6")
Presented in a stylish white with light hard flooring, this room is light and airy, with its vaulted style ceiling, it has a New York loft apartment feel to it. Radiator and range modern base and eye level units in the kitchen area, Electric oven, hob and extractor fan, with glass splash back. Integral Dishwasher, Fridge and Freezer. Gloss marble effect worktops with a stainless-steel sink and chrome mixer taps, finish off the kitchen perfectly. Side aspect windows. The open plan nature of the lounge/Diner and kitchen gives you a feel of space and light with plenty of room to entertain or simply relaxing after a hard day’s work.
Bedroom: 3.17m x 5.05m (10' 5" x 16' 7")
The beautiful Double bedroom is both elegant and sleek and is complemented with its vaulted ceiling. Double glazed window to side aspect, Radiator.
Bathroom: 2.42m x 1.87m (7' 11" x 6' 2")
The theme of elegance continues into the Bathroom, with its hidden cistern toilet, Wash basin on a vanity unit. White panelled bath with shower and shower screen. Towel rail and fully tiled.
Hallway: 4.44m x 1.00m (14' 7" x 3' 3")
Set of a split-level design, the Hallway gives an impressive entrance to the apartment. Radiator. Cupboard, housing the boiler and space and plumbing for your washing machine.
Outside:
There is a communal courtyard area and a small patio for enjoying the outside.
Storage cupboard:
Large storage space on the Ground Floor
Heating Supply: Central heating (electric).
Brochures
Brochure 1- COUNCIL TAXA payment made to your local authority in order to pay for local services like schools, libraries, and refuse collection. The amount you pay depends on the value of the property.Read more about council Tax in our glossary page.
- Band: B
- PARKINGDetails of how and where vehicles can be parked, and any associated costs.Read more about parking in our glossary page.
- Ask agent
- GARDENA property has access to an outdoor space, which could be private or shared.
- Yes
- ACCESSIBILITYHow a property has been adapted to meet the needs of vulnerable or disabled individuals.Read more about accessibility in our glossary page.
- Ask agent
Litten Tree House, CM7
Add an important place to see how long it'd take to get there from our property listings.
__mins driving to your place
Get an instant, personalised result:
- Show sellers you’re serious
- Secure viewings faster with agents
- No impact on your credit score



Your mortgage
Notes
Staying secure when looking for property
Ensure you're up to date with our latest advice on how to avoid fraud or scams when looking for property online.
Visit our security centre to find out moreDisclaimer - Property reference gea_220001633. The information displayed about this property comprises a property advertisement. Rightmove.co.uk makes no warranty as to the accuracy or completeness of the advertisement or any linked or associated information, and Rightmove has no control over the content. This property advertisement does not constitute property particulars. The information is provided and maintained by Game Estate Agents, West Mersea. Please contact the selling agent or developer directly to obtain any information which may be available under the terms of The Energy Performance of Buildings (Certificates and Inspections) (England and Wales) Regulations 2007 or the Home Report if in relation to a residential property in Scotland.
*This is the average speed from the provider with the fastest broadband package available at this postcode. The average speed displayed is based on the download speeds of at least 50% of customers at peak time (8pm to 10pm). Fibre/cable services at the postcode are subject to availability and may differ between properties within a postcode. Speeds can be affected by a range of technical and environmental factors. The speed at the property may be lower than that listed above. You can check the estimated speed and confirm availability to a property prior to purchasing on the broadband provider's website. Providers may increase charges. The information is provided and maintained by Decision Technologies Limited. **This is indicative only and based on a 2-person household with multiple devices and simultaneous usage. Broadband performance is affected by multiple factors including number of occupants and devices, simultaneous usage, router range etc. For more information speak to your broadband provider.
Map data ©OpenStreetMap contributors.




