3 bedroom bungalow for sale
Broadstone Park Road, Livermead, Torquay,

- PROPERTY TYPE
Bungalow
- BEDROOMS
3
- BATHROOMS
2
- SIZE
1,119 sq ft
104 sq m
- TENUREDescribes how you own a property. There are different types of tenure - freehold, leasehold, and commonhold.Read more about tenure in our glossary page.
Freehold
Key features
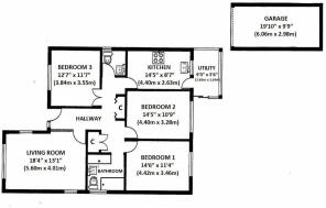
- Spacious entrance hallway
- Large living room with patio doors onto decked seating area enjoying harbour views
- Kitchen opening into utility room which opens onto the rear garden
- Three double bedrooms
- Family bathroom benefiting from shower and bath
- Spacious rear gardens with further patio and decking to the front with sea views
- Gated driveway parking leading to the garage
- Sought after location of Livermead in Torquay
- The property is being offered Chain Free
- Offering much potential for extension subject to the necessary planning permissions and consents
Description
Upon entering, you are greeted by a spacious hallway with a good size WC/cloakroom, two large storage cupboards, loft hatch, giving access to the roof space, which is full boarded and has lighting, offering potential for extension (subject to planning permissions and consents) and access to all main rooms. The large living room is a focal point of this home, boasting patio doors that lead onto a decked seating area where you can relax and enjoy the picturesque views of the harbour.
The kitchen is well-appointed and opens into a convenient utility room that provides access to the rear garden. The kitchen has a good range of wall and base level kitchen units with a built in eye level oven, electric hob and space for further appliances.
The three double bedrooms offer plenty of space for wardrobes and furniture, with the third bedroom currently being used as a dining room.
The spacious family bathroom is complete with a built in shower cubicle, panelled bath, WC and wash hand basin, ensuring modern convenience for residents and guests.
The outdoor space is equally impressive, with a spacious rear garden that is fully enclosed and laid to paving for easy maintenance. Additional patio and decking at the front of the property also provide a peaceful spot to enjoy the sea views. A gated driveway leads to the garage, offering plenty of parking space for residents and visitors.
This property is being offered chain free, giving buyers the opportunity to move in quickly and make this bungalow their own. With the potential for extension, subject to the necessary planning permissions and consents. This home offers versatility and room to grow for those looking to customise their living space.
Overall, this bungalow in Livermead is a rare find in a sought-after location, offering a unique blend of modern comfort, stunning views, and potential for future expansion. Don't miss out on the opportunity to make this property your own and enjoy the best of Torquay living. Contact us today to arrange a viewing and experience the beauty of this exceptional home firsthand.
Brochures
Material Information- COUNCIL TAXA payment made to your local authority in order to pay for local services like schools, libraries, and refuse collection. The amount you pay depends on the value of the property.Read more about council Tax in our glossary page.
- Band: E
- PARKINGDetails of how and where vehicles can be parked, and any associated costs.Read more about parking in our glossary page.
- Driveway
- GARDENA property has access to an outdoor space, which could be private or shared.
- Front garden,Enclosed garden,Rear garden
- ACCESSIBILITYHow a property has been adapted to meet the needs of vulnerable or disabled individuals.Read more about accessibility in our glossary page.
- Ask agent
Broadstone Park Road, Livermead, Torquay,
Add an important place to see how long it'd take to get there from our property listings.
__mins driving to your place
Get an instant, personalised result:
- Show sellers you’re serious
- Secure viewings faster with agents
- No impact on your credit score
About Woods Estate Agents, Auctioneers and Letting Agents, Newton Abbot
The Newton Abbot Property Centre, 2 Newton Road, Kingsteignton, Newton Abbot TQ12 3AJ



Your mortgage
Notes
Staying secure when looking for property
Ensure you're up to date with our latest advice on how to avoid fraud or scams when looking for property online.
Visit our security centre to find out moreDisclaimer - Property reference WNA-50164883. The information displayed about this property comprises a property advertisement. Rightmove.co.uk makes no warranty as to the accuracy or completeness of the advertisement or any linked or associated information, and Rightmove has no control over the content. This property advertisement does not constitute property particulars. The information is provided and maintained by Woods Estate Agents, Auctioneers and Letting Agents, Newton Abbot. Please contact the selling agent or developer directly to obtain any information which may be available under the terms of The Energy Performance of Buildings (Certificates and Inspections) (England and Wales) Regulations 2007 or the Home Report if in relation to a residential property in Scotland.
*This is the average speed from the provider with the fastest broadband package available at this postcode. The average speed displayed is based on the download speeds of at least 50% of customers at peak time (8pm to 10pm). Fibre/cable services at the postcode are subject to availability and may differ between properties within a postcode. Speeds can be affected by a range of technical and environmental factors. The speed at the property may be lower than that listed above. You can check the estimated speed and confirm availability to a property prior to purchasing on the broadband provider's website. Providers may increase charges. The information is provided and maintained by Decision Technologies Limited. **This is indicative only and based on a 2-person household with multiple devices and simultaneous usage. Broadband performance is affected by multiple factors including number of occupants and devices, simultaneous usage, router range etc. For more information speak to your broadband provider.
Map data ©OpenStreetMap contributors.




