Mount Street, Derby, Derbyshire, DE1

- PROPERTY TYPE
Apartment
- BEDROOMS
20
- BATHROOMS
20
- SIZE
Ask agent
- TENUREDescribes how you own a property. There are different types of tenure - freehold, leasehold, and commonhold.Read more about tenure in our glossary page.
Freehold
Key features
- Investment / Development Opportunity
- FULL PLANNING PERMISSION GRANTED MAY 2025
- Mixed Commercial and Residential Development
- Modern Method of Auction - NOW LIVE
- 18 Studio Apartments + 2 One-bed Room Flats
- 10 Parking Spaces / Car Park
- Large Commercial / Retail Unit with Parking
- Central Location
- Close to town centre
- FREEHOLD
Description
** ATTENTION DEVELOPERS / INVESTORS / BUILDERS ** AUCTION IS NOW LIVE - PRICE ADJUSTMENT **
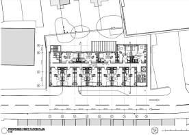
A fantastic development opportunity in Derby's City Centre to be sold by Modern Method of Auction. The site, which is approximately 0.2 acres in total comprises the former plots for 45 and 47 Mount Street and an adjacent block of garages, which have all been demolished. There was FULL PLANNING CONSENT (REF: 03/14/00427) granted in 2016 for the construction of 3-Storey mixed residential and commercial unit with parking space for 10 cars.
The retail unit is on the ground floor and the accommodation is on the 1st and 2nd floors.
On the first floor there is permission for 2 one-bedroom flats and 10 studio apartments. On the second floor there will be a further 8 studio apartments.
The commercial unit is 251m2 and has designated staff parking area and cycle store.
1-bedroom flats are around 34m2 each and the studio apartments are each approx 30m2 in size.
The Gross Developmental Value (GDV) for the complete unit is estimated at around £2.4-2.5 million.
The studio apartments will easily sell for £100-110k and the flats around £120-140k.
The finished retail unit should fetch around £300-400k.
The rental yields for this development are substantial. We would expect the retail unit to fetch £2500 PCM.
The 1-bed flats would rent for £650 PCM and the studio apartments would be let out for £600 PCM.
The combined annual rental income would come to around £175k
FULL PLANNING PERMISSION IN PLACE
The approved plans are available online at the Derby Planning Portal (REF 24/00914/FUL).
Mount Street is in a prime location given its close proximity to the city centre, University and transport links.
Investors and developers you do not want to miss on this fabulous opportunity.
Call 24/7 to request more details
Visit iamsold website (link below) for a buyers pack
Auctioneer Comments:
This property is for sale by the Modern Method of Auction, meaning the buyer and seller are to Complete within 56 days (the "Reservation Period"). Interested parties personal data will be shared with the Auctioneer (iamsold).
If considering buying with a mortgage, inspect and consider the property carefully with your lender before bidding.
A Buyer Information Pack is provided. The buyer will pay £300.00 including VAT for this pack which you must view before bidding.
The buyer signs a Reservation Agreement and makes payment of a non-refundable Reservation Fee of 4.50% of the purchase price including VAT, subject to a minimum of £6,600.00 including VAT. This is paid to reserve the property to the buyer during the Reservation Period and is paid in addition to the purchase price. This is considered within calculations for Stamp Duty Land Tax.
Services may be recommended by the Agent or Auctioneer in which they will receive payment from the service provider if the service is taken. Payment varies but will be no more than £450.00. These services are optional
- COUNCIL TAXA payment made to your local authority in order to pay for local services like schools, libraries, and refuse collection. The amount you pay depends on the value of the property.Read more about council Tax in our glossary page.
- Band: TBC
- PARKINGDetails of how and where vehicles can be parked, and any associated costs.Read more about parking in our glossary page.
- Yes
- GARDENA property has access to an outdoor space, which could be private or shared.
- Ask agent
- ACCESSIBILITYHow a property has been adapted to meet the needs of vulnerable or disabled individuals.Read more about accessibility in our glossary page.
- Ask agent
Mount Street, Derby, Derbyshire, DE1
Add an important place to see how long it'd take to get there from our property listings.
__mins driving to your place
Affordability
Get an instant, personalised result:
- Show sellers you’re serious
- Secure viewings faster with agents
- No impact on your credit score
Notes
Staying secure when looking for property
Ensure you're up to date with our latest advice on how to avoid fraud or scams when looking for property online.
Visit our security centre to find out moreDisclaimer - Property reference 10534643. The information displayed about this property comprises a property advertisement. Rightmove.co.uk makes no warranty as to the accuracy or completeness of the advertisement or any linked or associated information, and Rightmove has no control over the content. This property advertisement does not constitute property particulars. The information is provided and maintained by EweMove, Covering Yorkshire. Please contact the selling agent or developer directly to obtain any information which may be available under the terms of The Energy Performance of Buildings (Certificates and Inspections) (England and Wales) Regulations 2007 or the Home Report if in relation to a residential property in Scotland.
Auction Fees: The purchase of this property may include associated fees not listed here, as it is to be sold via auction. To find out more about the fees associated with this property please call EweMove, Covering Yorkshire on 01274 041858.
*Guide Price: An indication of a seller's minimum expectation at auction and given as a Guide Price or a range of Guide Prices. This is not necessarily the figure a property will sell for and is subject to change prior to the auction.
Reserve Price: Each auction property will be subject to a Reserve Price below which the property cannot be sold at auction. Normally the Reserve Price will be set within the range of Guide Prices or no more than 10% above a single Guide Price.
*This is the average speed from the provider with the fastest broadband package available at this postcode. The average speed displayed is based on the download speeds of at least 50% of customers at peak time (8pm to 10pm). Fibre/cable services at the postcode are subject to availability and may differ between properties within a postcode. Speeds can be affected by a range of technical and environmental factors. The speed at the property may be lower than that listed above. You can check the estimated speed and confirm availability to a property prior to purchasing on the broadband provider's website. Providers may increase charges. The information is provided and maintained by Decision Technologies Limited. **This is indicative only and based on a 2-person household with multiple devices and simultaneous usage. Broadband performance is affected by multiple factors including number of occupants and devices, simultaneous usage, router range etc. For more information speak to your broadband provider.
Map data ©OpenStreetMap contributors.





