Land for sale
Building Plot Adj, 38 Victoria Street , Lincoln, Lincolnshire, LN1
- PROPERTY TYPE
Land
- SIZE
Ask agent
Key features
- Residential Building Plot
- (Planning ref 2023/0392/CXN City of Lincoln council)
- 2 Bedroom Detached Dwelling
- City Centre Location
- Allocated Parking Space
Description
**CITY CENTRE RESIDENTIAL BUILDING PLOT**
A rare opportunity to acquire this residential building plot, with planning approved (Planning ref 2023/0392/CXN City of Lincoln council) for a detached dwelling in the heart of the Cathedral City of Lincoln. The plot is accessed from Victoria street and is the last remining dwelling to be built of the successful Bailgate Mount Development. The completed dwelling would create a fantastic city centre residential home, or an excellent investment opportunity.
For further information please contact the selling agent.
Agents note - The pictures are CGI image for illustration only.
Situation
Victoria Street is situated within the City Centre of Lincoln off West Parade.
Planning Permission
Planning Permission was granted by Lincoln City Council on 2nd August 2023 under ref 2023/0392/CXN for the erection of a 2 bedroom detached dwelling, a copy of the planning permission is available upon request from the sole selling agent's office.
Local Authority
Lincoln City Council, Beaumont Fee, Lincoln, LN1 1DD
Services
Purchasers are advised to make their own investigations into services.
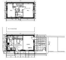
Plans, Areas and Boundaries
The areas and plans attached to these particulars have been produced in good faith. They are for illustrative purposes only and their accuracy is not guaranteed. The successful purchaser will be deemed to have full knowledge of all boundaries and neither the vendors nor their agents will be responsible for finding the boundaries for the ownership thereof.
Building Plot Adj, 38 Victoria Street , Lincoln, Lincolnshire, LN1
NEAREST STATIONS
Distances are straight line measurements from the centre of the postcode- Lincoln Central Station0.5 miles
- Hykeham Station3.5 miles
Notes
Disclaimer - Property reference 10412939. The information displayed about this property comprises a property advertisement. Rightmove.co.uk makes no warranty as to the accuracy or completeness of the advertisement or any linked or associated information, and Rightmove has no control over the content. This property advertisement does not constitute property particulars. The information is provided and maintained by Pygott & Crone, Lincoln. Please contact the selling agent or developer directly to obtain any information which may be available under the terms of The Energy Performance of Buildings (Certificates and Inspections) (England and Wales) Regulations 2007 or the Home Report if in relation to a residential property in Scotland.
Map data ©OpenStreetMap contributors.





