
4 bedroom barn conversion for sale
Hawshaw Lodge, Lothersdale, North Yorkshire, BD20

- PROPERTY TYPE
Barn Conversion
- BEDROOMS
4
- BATHROOMS
3
- SIZE
2,216 sq ft
206 sq m
Key features
- End mews property
- Four bedrooms plus a buisness office
- Two Ensuites and a family bathroom
- Good finish with high quality fixtures and fittings
- Exposed beams and wood floors
- Garden and patio area
- Double garage and parking
- Rural location
Description
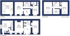
Through a pair of double glazed French doors into the main hallway with a stone floor, underfloor heating, staircase to the first floor and access to a two piece suite with close coupled w.c. and pedestal wash hand basin.
From the hall is the kitchen with a selection of modern Country style wall, drawer and base units with wooden worktop surfaces and green glass splashbacks, a Belfast sink with mixer tap, space for an American style fridge/freezer, space for a washing machine or a fridge and two windows to the front. Also accessed from the hall is the living room with a wood burning stove and stone fireplace, wood flooring and two windows to the front.
To the ground floor is a further small hallway having a utility cupboard with plumbing for a washing machine and a further cupboard housing the boiler. Then leading through to an entrance dining hallway with tank cupboard, stone floor, composite door and windows to the side along with a second staircase with wooden balustrade leading to the upper floor. This staircase leads to a room with a beautiful exposed stone wall, a window to the front and pair of skylight windows to the side.
Back to the main hallway, the staircase leads to a first floor landing providing access to a master bedroom with fitted shelving, storage area, two windows to the front and an en-suite comprising of, an open glass screen shower cubicle with modern rain hood shower and shower attachment, chrome heated towel rail, close coupled w.c., pedestal wash hand basin, tiled walls and floors and a lovely feature arched sunrise window. The next bedroom has two windows to the front, a walk-in wardrobe and a fully tiled en-suite comprising of, a shower cubicle, low flush w.c, pedestal wash hand basin and heated towel rail.
To the second floor landing with skylight window and access to two further bedrooms. The larger bedroom has a skylight window and the second bedroom with skylight window and fitted cupboard. The bathroom offers a three piece suite which includes a bath, pedestal wash hand basin and low flush w.c.
Externally, there is a communal driveway entrance, cobbled central areas and a private paved area with artificial grass. There is parking for two cars and a double garage with a remote control up and over door with open ceiling, power and light.
Local Authority & Council Tax Band
• North Yorkshire County Council,
• Council Tax Band F
Tenure, Services & Parking
• Leasehold. 999 years from 2005. Management charge of £500 PA paid to Hawshaw Management Company.
• The tarmac areas are owned by Hawshaw Management Company, with a right of access over it
• Mains electricity is installed. Domestic heating is from and oil fired boiler, via part underfloor heating and part radiators.
• The borehole and septic tank are shared between the 5 houses.
• Subletting is not allowed
Internet & Mobile Coverage
Information obtained from the Ofcom website indicates that an internet connection is available from at least one provider. Outdoor mobile coverage (excluding 5G) is likely available from at least one of the UKs four leading providers. Results are predictions and not a guarantee. Actual services may be different depending on particular circumstances and the precise location of the user and may be affected by network outages. For further information please refer to:
Upon leaving Skipton head south along Carleton Road, through Carleton village and follow the signs for Colne. Continue along West Road. From here take a left into Hawshaw Lodge and follow the road round. the property can be seen on your left marked by our Dacre Son & Hartley 'For Sale' board.
Brochures
Particulars- COUNCIL TAXA payment made to your local authority in order to pay for local services like schools, libraries, and refuse collection. The amount you pay depends on the value of the property.Read more about council Tax in our glossary page.
- Band: F
- PARKINGDetails of how and where vehicles can be parked, and any associated costs.Read more about parking in our glossary page.
- Garage,Driveway
- GARDENA property has access to an outdoor space, which could be private or shared.
- Yes
- ACCESSIBILITYHow a property has been adapted to meet the needs of vulnerable or disabled individuals.Read more about accessibility in our glossary page.
- Ask agent
Hawshaw Lodge, Lothersdale, North Yorkshire, BD20
Add an important place to see how long it'd take to get there from our property listings.
__mins driving to your place
Get an instant, personalised result:
- Show sellers you’re serious
- Secure viewings faster with agents
- No impact on your credit score
Your mortgage
Notes
Staying secure when looking for property
Ensure you're up to date with our latest advice on how to avoid fraud or scams when looking for property online.
Visit our security centre to find out moreDisclaimer - Property reference SKI240194. The information displayed about this property comprises a property advertisement. Rightmove.co.uk makes no warranty as to the accuracy or completeness of the advertisement or any linked or associated information, and Rightmove has no control over the content. This property advertisement does not constitute property particulars. The information is provided and maintained by Dacre Son & Hartley, Skipton. Please contact the selling agent or developer directly to obtain any information which may be available under the terms of The Energy Performance of Buildings (Certificates and Inspections) (England and Wales) Regulations 2007 or the Home Report if in relation to a residential property in Scotland.
*This is the average speed from the provider with the fastest broadband package available at this postcode. The average speed displayed is based on the download speeds of at least 50% of customers at peak time (8pm to 10pm). Fibre/cable services at the postcode are subject to availability and may differ between properties within a postcode. Speeds can be affected by a range of technical and environmental factors. The speed at the property may be lower than that listed above. You can check the estimated speed and confirm availability to a property prior to purchasing on the broadband provider's website. Providers may increase charges. The information is provided and maintained by Decision Technologies Limited. **This is indicative only and based on a 2-person household with multiple devices and simultaneous usage. Broadband performance is affected by multiple factors including number of occupants and devices, simultaneous usage, router range etc. For more information speak to your broadband provider.
Map data ©OpenStreetMap contributors.






