Property Development, Kippax, West Yorkshire
- SIZE
Ask agent
- SECTOR
Commercial development for sale
Key features
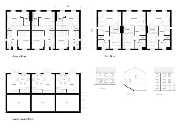
- Plans passed for 3x three storey, three bedroom townhouses and 2x three storey, three bedroom detached houses
- Leeds City Council Planning Number 23/01615/FU
- Located approximately six miles south east of Leeds City Centre
Description
Well appointed site located on the fringe of this much sought after Leeds village. Planning has been passed for 3x three storey, three bedroom townhouses and 2x three storey, three bedroom detached houses (Leeds City Council 23/01615/FU). This is a 0.42 acre site with access provided via Well Lane and the planning permission provides for a very well designed scheme with gardens, generous parking and a community garden. Kippax is located approximately six miles south east of Leeds City Centre and is ideally located between the M1, A1 and M62. The village has approximately 10,000 residents with many amenities including a large Co Op, doctors surgeries and three primary schools.
EPC Exempt.
Notes
Disclaimer - Property reference 590622. The information displayed about this property comprises a property advertisement. Rightmove.co.uk makes no warranty as to the accuracy or completeness of the advertisement or any linked or associated information, and Rightmove has no control over the content. This property advertisement does not constitute property particulars. The information is provided and maintained by Ernest Wilson & Co Limited, EW Leeds. Please contact the selling agent or developer directly to obtain any information which may be available under the terms of The Energy Performance of Buildings (Certificates and Inspections) (England and Wales) Regulations 2007 or the Home Report if in relation to a residential property in Scotland.
Map data ©OpenStreetMap contributors.



