
28 Chichester Road, Selsey, PO20

- PROPERTY TYPE
Detached
- BEDROOMS
3
- BATHROOMS
1
- SIZE
Ask agent
- TENUREDescribes how you own a property. There are different types of tenure - freehold, leasehold, and commonhold.Read more about tenure in our glossary page.
Freehold
Key features
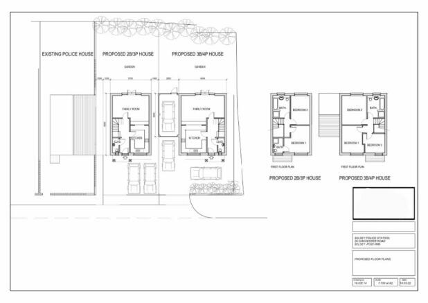
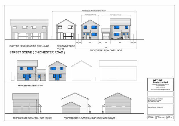
- Re-development opportunity
- Full Planning Permission Granted - 22/01171/FUL
- Located to the Northern end of Selsey
- Freehold Building Plot
- Detached house with 3 bedrooms
- House requires full renovation or removal
- 6 Garages & ample parking for a number of cars
- Possibility to split the plot and purchase only the existing building
Description
A rare opportunity to purchase a development site in Selsey with full permission granted 22/01171/FUL to renovate the existing house and built 2 new detached houses. Additional previous planning granted under ref 20/1110/FUL (which has now lapsed) to redevelop the whole site and build two pairs of semi detached family homes.
The site is the former Selsey police station located to the northern end of Selsey close to local Asda store, schools and other local amenities. Please note the seller is willing to enter into discussions should a buyer wish to split the plot and only purchase the existing police house.
EPC Rating: D
Entrance room/hall
Doors to office 1 and 2
Office 1 (2.88m x 2.94m)
Door to inner hallway
Office 2 (former police reception desk room) (2.58m x 4.24m)
Door through to former house living room
Inner hallway
Door to parking area & garages and door to former kit room
Office 3 (4.25m x 4.49m)
Door to former kit room
Former kit room (2.39m x 2.89m)
Doors to shower room, cloakroom and storage cupboard
Cloakroom
W/C and wash hand basin
Shower room
Walk in shower cubicle
Former house living room (3.74m x 5.34m)
Door to former house entrance hall
Former house entrance hall
Stairs to the 1st floor, doors to cloakroom and kitchen breakfast room
Cloakroom
W/C and wash hand basin
Kitchen breakfast room (2.43m x 5.69m)
measurement widens to 2.95 in part
Former house bedroom 1 (3.23m x 3.94m)
Built in double wardrobe
Former house bedroom 2 (3.06m x 3.79m)
Built in double wardrobe
Former house bedroom 3 (2.36m x 2.96m)
Built in cupboard
Former house shower room
Walk in shower cubicle, w/c and wash hand basin
Front Garden
Laid to paving with dwarf brick wall
Garden
Westerly facing
Parking - Garage
Up & over door. This garage is designated to be demolished and built on under the current planning permission
Parking - Garage
Up & over door. This garage is designated to be demolished and built on under the current planning permission
Parking - Garage
Up & over door. This garage is designated to be demolished and built on under the current planning permission
Parking - Garage
Up & over door. This garage is designated to be demolished and built on under the current planning permission
Parking - Garage
Up & over door. This garage is designated to be demolished and built on under the current planning permission
Parking - Garage
Up & over door. This garage is designated to be demolished and built on under the current planning permission
Parking - Off street
Parking area currently provides off road parking space for approximately 6 cars although this area is designated to be built on under the current planning permission
Brochures
Property Brochure- COUNCIL TAXA payment made to your local authority in order to pay for local services like schools, libraries, and refuse collection. The amount you pay depends on the value of the property.Read more about council Tax in our glossary page.
- Band: C
- PARKINGDetails of how and where vehicles can be parked, and any associated costs.Read more about parking in our glossary page.
- Garage,Off street
- GARDENA property has access to an outdoor space, which could be private or shared.
- Front garden,Private garden
- ACCESSIBILITYHow a property has been adapted to meet the needs of vulnerable or disabled individuals.Read more about accessibility in our glossary page.
- Ask agent
28 Chichester Road, Selsey, PO20
Add an important place to see how long it'd take to get there from our property listings.
__mins driving to your place
Get an instant, personalised result:
- Show sellers you’re serious
- Secure viewings faster with agents
- No impact on your credit score
Your mortgage
Notes
Staying secure when looking for property
Ensure you're up to date with our latest advice on how to avoid fraud or scams when looking for property online.
Visit our security centre to find out moreDisclaimer - Property reference 6fb080bc-0636-451e-aee1-93daae278e8e. The information displayed about this property comprises a property advertisement. Rightmove.co.uk makes no warranty as to the accuracy or completeness of the advertisement or any linked or associated information, and Rightmove has no control over the content. This property advertisement does not constitute property particulars. The information is provided and maintained by Henry Adams, Selsey. Please contact the selling agent or developer directly to obtain any information which may be available under the terms of The Energy Performance of Buildings (Certificates and Inspections) (England and Wales) Regulations 2007 or the Home Report if in relation to a residential property in Scotland.
*This is the average speed from the provider with the fastest broadband package available at this postcode. The average speed displayed is based on the download speeds of at least 50% of customers at peak time (8pm to 10pm). Fibre/cable services at the postcode are subject to availability and may differ between properties within a postcode. Speeds can be affected by a range of technical and environmental factors. The speed at the property may be lower than that listed above. You can check the estimated speed and confirm availability to a property prior to purchasing on the broadband provider's website. Providers may increase charges. The information is provided and maintained by Decision Technologies Limited. **This is indicative only and based on a 2-person household with multiple devices and simultaneous usage. Broadband performance is affected by multiple factors including number of occupants and devices, simultaneous usage, router range etc. For more information speak to your broadband provider.
Map data ©OpenStreetMap contributors.








