Block E- Design and Build, Abbots Way, Lune Industrial Estate, Lancaster, LA1 5QP
- SIZE AVAILABLE
30,000-75,000 sq ft
2,787-6,968 sq m
- SECTOR
Warehouse to lease
- USE CLASSUse class orders: B2 General Industrial and B8 Storage and Distribution
B2, B8
Lease details
- Lease available date:
- Now
- Lease type:
- Long term
Key features
- Design and Build
- ESG Credentials
- Self contained yard
- Grade A
- Build to suit
- New key point...
Description
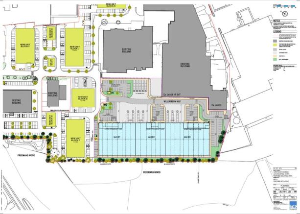
Block E consists of Design & Build opportunity from 30,000sqft to a stand alone, self contained distribution / manufacturing facility of 75,000sqft.
Lune Business Park is a major new 23-acre development by Hurstwood Holdings providing an opportunity for tenants to expand or relocate at this established park in the busy city of Lancaster. This mixed-use scheme, totaling 200,000 sq ft of new industrial space comprising 65 units, will provide high quality and refurbished units ranging in size from 1,000 sq ft –150,000 sq ft.
Location
Lune Business Park is located just a mile from the centre of Lancaster on New Quay Road, adjacent to the river Lune. It is within a short drive of junctions 33 and 34 of the M6 motorway. The A6 passes through Lancaster city centre leading southwards to Preston, Chorley and Manchester and northwards to Carnforth, Kendal,Penrith and Carlisle. The A683 link road, opened in recent years, has further improved access in the area. Lancaster is served by the West Coast Main Line at Lancaster railway station.
Specifications
Build to suit opportunity. Grade A newbuild Specification.
Brochures
Block E- Design and Build, Abbots Way, Lune Industrial Estate, Lancaster, LA1 5QP
NEAREST STATIONS
Distances are straight line measurements from the centre of the postcode- Lancaster Station0.7 miles
- Bare Lane Station1.9 miles
- Morecambe Station2.4 miles
Notes
Disclaimer - Property reference 226929-2. The information displayed about this property comprises a property advertisement. Rightmove.co.uk makes no warranty as to the accuracy or completeness of the advertisement or any linked or associated information, and Rightmove has no control over the content. This property advertisement does not constitute property particulars. The information is provided and maintained by Hurstwood, Manchester. Please contact the selling agent or developer directly to obtain any information which may be available under the terms of The Energy Performance of Buildings (Certificates and Inspections) (England and Wales) Regulations 2007 or the Home Report if in relation to a residential property in Scotland.
Map data ©OpenStreetMap contributors.




