
Horse Fair Avenue, Chapel-En-Le-Frith, High Peak

- PROPERTY TYPE
Semi-Detached Bungalow
- BEDROOMS
3
- BATHROOMS
2
- SIZE
Ask agent
- TENUREDescribes how you own a property. There are different types of tenure - freehold, leasehold, and commonhold.Read more about tenure in our glossary page.
Freehold
Key features
- Three Bedroom Dormer Bungalow
- Two First Floor Bedrooms (One with Ensuite Shower Room)
- Conservatory to Rear
- Garage and Garden Store
- Two Reception Rooms
- Cul de Sac Location
- NO ONWARD CHAIN
Description
Located on Horse Fair Avenue, the property sits within the cul de sac and has easy access to the town centre and many amenities it has to offer. No Onward Chain.
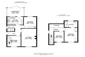
In a little more detail, the accommodation on offer comprises an entrance hallway, lounge with double glazed window to the front and feature fireplace, dining room looking out to the front and staircase leading to the first floor, kitchen complete with a range of fitted wall and base units with granite worktops over, inset sink and integrated oven and hob with extractor above. The conservatory has double glazed windows to the side and rear and opens onto the garden. Bedroom one has fitted bedroom furniture including wardrobes, drawers and bedside cabinets, the family bathroom has a WC, wash basin in vanity unit and wet room style shower area with glass shower screen. The first floor has a landing with window to the side and useful storage cupboards, bedroom three and bedroom two with fitted wardrobes and ensuite shower room comprising WC, wash basin and shower cubicle with shower boarding and glass screen.
Externally there is a garden to the front, driveway leading down the side of the house to the garage accessed via up and over door to the front. The rear garden is an enclosed space with paved seating area and raised flowerbeds and access to the garden store.
LOCATION
Chapel-en-le-Frith, known as 'The Capital of the Peak' nestles in an upland valley in the High Peak and is surrounded by dramatic landscape of gritstone ridges and shapely hills. The town takes its name from a small chapel built in 1225 by the keepers of the Royal Forest that is now the Church of St Thomas Becket, where 1,500 Scottish soldiers were imprisoned during the Civil War. The historic town centre also features a traditional marketplace which still has its original renowned stocks which the local cafe takes its name. A common phrase you here many resident say is "We are so lucky to live here" even after living in the town for decades. That is further, solid evidence, if ever it was needed that Chapel-en-le-Frith and its surrounding towns and villages are an excellent place to set up home.
Entrance Hall
TENURE
FREEHOLD Subject to Verification by Solicitors
SERVICES (NOT TESTED)
Services have not been tested and you are advised to make your own enquiries and/or inspections.
LOCAL AUTHORITY
High Peak Borough Council
VIEWING
Viewing strictly by appointment through the Agents.
Brochures
HorseFairAvenue_95_C- COUNCIL TAXA payment made to your local authority in order to pay for local services like schools, libraries, and refuse collection. The amount you pay depends on the value of the property.Read more about council Tax in our glossary page.
- Band: C
- PARKINGDetails of how and where vehicles can be parked, and any associated costs.Read more about parking in our glossary page.
- Garage
- GARDENA property has access to an outdoor space, which could be private or shared.
- Yes
- ACCESSIBILITYHow a property has been adapted to meet the needs of vulnerable or disabled individuals.Read more about accessibility in our glossary page.
- Ask agent
Horse Fair Avenue, Chapel-En-Le-Frith, High Peak
Add an important place to see how long it'd take to get there from our property listings.
__mins driving to your place
Get an instant, personalised result:
- Show sellers you’re serious
- Secure viewings faster with agents
- No impact on your credit score



Your mortgage
Notes
Staying secure when looking for property
Ensure you're up to date with our latest advice on how to avoid fraud or scams when looking for property online.
Visit our security centre to find out moreDisclaimer - Property reference 958963. The information displayed about this property comprises a property advertisement. Rightmove.co.uk makes no warranty as to the accuracy or completeness of the advertisement or any linked or associated information, and Rightmove has no control over the content. This property advertisement does not constitute property particulars. The information is provided and maintained by Gascoigne Halman, Chapel-En-Le-Frith. Please contact the selling agent or developer directly to obtain any information which may be available under the terms of The Energy Performance of Buildings (Certificates and Inspections) (England and Wales) Regulations 2007 or the Home Report if in relation to a residential property in Scotland.
*This is the average speed from the provider with the fastest broadband package available at this postcode. The average speed displayed is based on the download speeds of at least 50% of customers at peak time (8pm to 10pm). Fibre/cable services at the postcode are subject to availability and may differ between properties within a postcode. Speeds can be affected by a range of technical and environmental factors. The speed at the property may be lower than that listed above. You can check the estimated speed and confirm availability to a property prior to purchasing on the broadband provider's website. Providers may increase charges. The information is provided and maintained by Decision Technologies Limited. **This is indicative only and based on a 2-person household with multiple devices and simultaneous usage. Broadband performance is affected by multiple factors including number of occupants and devices, simultaneous usage, router range etc. For more information speak to your broadband provider.
Map data ©OpenStreetMap contributors.





