
Plot for sale
Building Land off Church Street, Ruyton Xi Towns.
- PROPERTY TYPE
Plot
- SIZE
Ask agent
Key features
- Planning Permission & Reserved Matters approved
- Two detached dwellings
- 4 bedroom & 3 bedroom properties
- Extending to around 0.34 of an acre
- No CIL liability for this development*
- Tucked away village centre location
Description
Description - Halls are delighted with instructions to offer this exciting development opportunity for sale by Private Treaty.
The building land to the rear of Purton Villa provides an excellent opportunity for purchasers to acquire a parcel of land extending to around 0.34 of an acre with Planning Permission and Reserved Matters approved (we are informed that a lawful commencement was made in February 2017 with email confirmation from Shropshire Council). for the construction of two detached dwellings in a particularly convenient tucked away village location.
The site is an irregular shaped parcel of land accessed from Church Steet via a private road, positioned between the rear garden of Purton Villa and the village playing field. The site is sloping (east to west) and is currently in an overgrown condition.
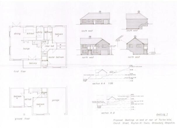
The proposed house on Plot One will have four bedrooms and the proposed house on Plot Two will have three bedrooms. both being split level to acknowledge the slope of the site, and both will be orientated towards the north west.
The proposed Plot One will have an integral garage and the proposed Plot Two will have a provision for a detached garage and both dwellings will have good sized gardens.
The sale of this conveniently positioned parcel of building land does, therefore, provide a rare opportunity for developers to acquire a a well positioned development site with planning permission and reserved matters approved.
Situation - The land is situated close to the centre of the popular village of Ruyton Xi Towns, which contains a number of amenities including a primary school, Cafe, and Church, whilst also being well placed for access to the larger centres of and Baschurch and Oswestry, with the county town of Shrewsbury lying within reasonable commuting distance.
Planning Permission - Reserved matters pursuant to outline planning application ref 10/03995/OUT for the erection of two dwellings to include access, appearance, landscaping, layout and scale. The application reference number is 14/03158/REM.
Community Infrastructure Levy* - We are informed by the Vendors that there is no CIL liability for this site as it currently stands.
Available Documentation - - Decision for Discharge of conditions application 16/05683/DIS (lawful commencement made February 2017 with email confirmation from SC).
- Officer report
- Reserved Matters approval document 14/03158/REM
- Outline planning permission approval document 10/03995/OUT
- Archaeological evaluation
- Survey of existing levels
- Proposed plans and elevations
A full copy of the above mentioned documentation and associated documents can be requested from the selling agent or downloaded from the Shropshire Council Planning Portal.
Services - We understand that mains water, drainage and electricity are all available nearby. Prospective purchasers should, however, make their own enquiries to satisfy themselves as to the capacity and availability of any services.
Tenure & Possession - The land is said to be of freehold tenure and vacant possession will be given on completion of the purchase.
Local Authority - Shropshire Council, Shirehall, Abbey Foregate, Shrewsbury, Shropshire, SY2 6ND. .
Boundaries, Roads & Fences - The purchaser(s) shall be deemed to have full knowledge of the boundaries and neither the vendor nor the agent will be responsible for defining the ownership of the boundary fences and hedges.
Anti-Money Laundering (Aml) Checks - We are legally obligated to undertake anti-money laundering checks on all property purchasers. Whilst we are responsible for ensuring that these checks, and any ongoing monitoring, are conducted properly; the initial checks will be handled on our behalf by a specialist company, Movebutler, who will reach out to you once your offer has been accepted.
The charge for these checks is £30 (including VAT) per purchaser, which covers the necessary data collection and any manual checks or monitoring that may be required. This cost must be paid in advance, directly to Movebutler, before a memorandum of sale can be issued, and is non-refundable. We thank you for your cooperation.
Viewings - During daylight hours by those in possession of a set of Halls sale particulars.
Brochures
Building Land off Church Street, Ruyton Xi Towns.Building Land off Church Street, Ruyton Xi Towns.
NEAREST STATIONS
Distances are straight line measurements from the centre of the postcode- Yorton Station7.0 miles




Notes
Disclaimer - Property reference 33293138. The information displayed about this property comprises a property advertisement. Rightmove.co.uk makes no warranty as to the accuracy or completeness of the advertisement or any linked or associated information, and Rightmove has no control over the content. This property advertisement does not constitute property particulars. The information is provided and maintained by Halls Estate Agents, Ellesmere. Please contact the selling agent or developer directly to obtain any information which may be available under the terms of The Energy Performance of Buildings (Certificates and Inspections) (England and Wales) Regulations 2007 or the Home Report if in relation to a residential property in Scotland.
Map data ©OpenStreetMap contributors.







