Office to lease
Brunswick Street, Oldham
- SIZE AVAILABLE
7,915 sq ft
735 sq m
- SECTOR
Office to lease
Lease details
- Lease available date:
- Ask agent
Key features
- 7915 square feet
- £12 per square foot
- Private parking
- Lift
- Lobby area
- Versatile office space
- HQ style space
- Disabled facilities
- Kitchen and WC on each floor
- Oldham town centre
Description
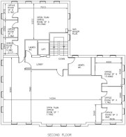
The accommodation includes versatile accommodation arranged over ground, first and second floors.
The space has the benefit of being part cellular and part open plan and the existing layout provides 'ready to move into' accommodation suitable for a variety of occupiers.
The ground floor is laid out to provide a dedicated reception area, a meeting / boardroom and a full suite of offices with canteen facilities and a central lift.
The first floor includes various office rooms, a staff break out area, and open plan space. Both the first and second floors are arranged to provide a combination of part cellular and part open plan space in individual layouts to suit each floor. W.C. and kitchen facilities are provided throughout the accommodation and the property also has the benefit of a shower room.
This is an excellent building which would suit a variety of occupiers in particular those seeking HQ style space in a prime location.
Medtia court is situated on Brunswick Street within the commercial centre of Oldham and close to Oldham Way (A62) which provides dual carriageway access to both the M60 and M62 motorways. Located just off Union Street which is the main thoroughfare of Oldham town centre, the property sits next door to Oldham University campus.
There are shops, pubs, cafes and restaurants close by and the property is within walking distance of Oldham Central Bus Station, the Civic Centre, the Law Courts and Oldham Mumps Metrolink Station which provides regular services to and from Manchester City Centre. In addition, it's also close to the Metrolink route.
Brochures
Brunswick Street, Oldham
NEAREST STATIONS
Distances are straight line measurements from the centre of the postcode- Westwood Tram Stop0.5 miles
- Oldham Mumps Station0.5 miles
- Derker Tram Stop1.0 miles
Notes
Disclaimer - Property reference 33294952. The information displayed about this property comprises a property advertisement. Rightmove.co.uk makes no warranty as to the accuracy or completeness of the advertisement or any linked or associated information, and Rightmove has no control over the content. This property advertisement does not constitute property particulars. The information is provided and maintained by COUSINS HOMES LTD, Manchester. Please contact the selling agent or developer directly to obtain any information which may be available under the terms of The Energy Performance of Buildings (Certificates and Inspections) (England and Wales) Regulations 2007 or the Home Report if in relation to a residential property in Scotland.
Map data ©OpenStreetMap contributors.






