
Plot for sale
Sand Pit Lane, Alkborough, North Lincolnshire, DN15
- PROPERTY TYPE
Plot
- BEDROOMS
4
- BATHROOMS
3
- SIZE
Ask agent
Key features
- A SUPERB RESIDENTIAL BUILDING PLOT
- EXCELLENT OPPORTUNITY TO BUILD YOUR DREAM HOME
- HIGHLY DESIRABLE PRIVATE VILLAGE SETTING
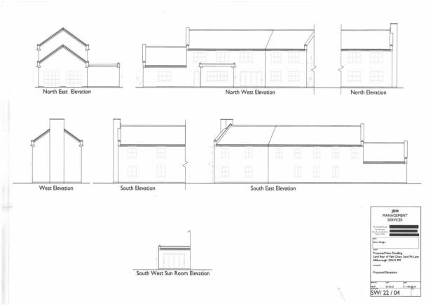
- PA/2023/144
- PLANNING PERMISSION FOR A STYLISH DETACHED HOUSE
- RIVER HUMBER VIEWS
- VIEWING IS ESSENTIAL
Description
** PA/2023/144 ** FANTASTIC RESIDENTIAL BUILDING PLOT ** A rare opportunity to purchase a substantial private residential building plot situated within the highly desirable semi-rural village of Alkborough enjoying excellent River Humber views. Benefitting from planning permission to erect a new detached dwelling, including demolition of the existing barn, on land to the rear of Pale Close, Sandpit Lane. The contemporary house design is ideal for a modern family or professional couple with accommodation to comprise, a large central open plan living/dining kitchen leading to a sun room and fine main living room, spacious utility room and cloakroom. The first floor provides 4 double bedrooms with a feature master bedroom suite benefitting from a large dressing room and en-suite bathroom, a 'jack & jill' ensuite to bedrooms 2 and 3 and a main family bathroom. The property sits within surrounding private gardens with a substantial driveway allowing excellent parking with direct access to an integral double garage. Viewing of the site comes with the agents highest of recommendations. View via our Brigg office.
Sand Pit Lane, Alkborough, North Lincolnshire, DN15
NEAREST STATIONS
Distances are straight line measurements from the centre of the postcode- Broomfleet Station3.6 miles
- Brough Station4.5 miles
- Gilberdyke Station5.0 miles
Notes
Disclaimer - Property reference PFA230808. The information displayed about this property comprises a property advertisement. Rightmove.co.uk makes no warranty as to the accuracy or completeness of the advertisement or any linked or associated information, and Rightmove has no control over the content. This property advertisement does not constitute property particulars. The information is provided and maintained by Paul Fox, Brigg. Please contact the selling agent or developer directly to obtain any information which may be available under the terms of The Energy Performance of Buildings (Certificates and Inspections) (England and Wales) Regulations 2007 or the Home Report if in relation to a residential property in Scotland.
Map data ©OpenStreetMap contributors.








