Plot for sale
Newtown, Leominster
- PROPERTY TYPE
Plot
- SIZE
Ask agent
Key features
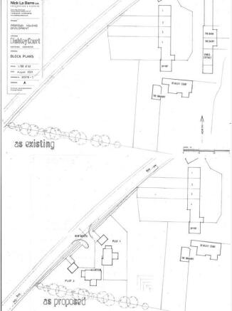
- Building Plot
- Planning For 2 Detached House
- Both with 3 Bedrooms
- Garage and Garden
- Rural Loaction
- Close to Leominster
- Planning No 213450
Description
The building plot is situated just off Dishley Court, Newtown, Nr Leominster, in a beautiful rural location and the market town Leominster is only a short drive away with good amenities to include shops an supermarkets, schools and a train station.
HEREFORDSHIRE PLANNING NO 213450.
Further details are available through the selling agent or on the Herefordshire planning portal -
SERVICES
Mains water and electricity is believed to be close by, the properties will require private drainage.
AGENTS NOTE
All viewings must be via appointment through the selling agent.
Brochures
Newtown, LeominsterBrochureNewtown, Leominster
NEAREST STATIONS
Distances are straight line measurements from the centre of the postcode- Leominster Station1.9 miles
Notes
Disclaimer - Property reference 33322913. The information displayed about this property comprises a property advertisement. Rightmove.co.uk makes no warranty as to the accuracy or completeness of the advertisement or any linked or associated information, and Rightmove has no control over the content. This property advertisement does not constitute property particulars. The information is provided and maintained by Jonathan Wright Estate Agents, Leominster. Please contact the selling agent or developer directly to obtain any information which may be available under the terms of The Energy Performance of Buildings (Certificates and Inspections) (England and Wales) Regulations 2007 or the Home Report if in relation to a residential property in Scotland.
Map data ©OpenStreetMap contributors.




