
4 bedroom detached house for sale
The Dell, Bardsey, LS17

- PROPERTY TYPE
Detached
- BEDROOMS
4
- BATHROOMS
3
- SIZE
2,900 sq ft
269 sq m
- TENUREDescribes how you own a property. There are different types of tenure - freehold, leasehold, and commonhold.Read more about tenure in our glossary page.
Freehold
Key features
- Building plot
- Set within the heart of Bardsey village
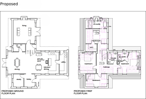
- Planning permission ofr four bed dwelling
- Planning application number 22/06985/FU
Description
An exceptional chance to secure an individual building plot with full planning permission (Application No. 22/06985/FU) for a stunning two-storey, detached, four-bedroom residence of approximately 2,900 Sq ft, perfectly positioned in the sought-after village of Bardsey.
Set within The Dell, and backing onto open countryside, the proposed home will enjoy uninterrupted rural greenbelt views - an idyllic setting where privacy meets natural beauty.
Bardsey, steeped in history and proudly listed in the Domesday Book of 1086, offers the charm of village life alongside modern convenience. Residents enjoy a welcoming community, a junior school, parish church, tennis club, and the famous Bingley Arms, thought to be England’s oldest pub. Excellent road links via the A58 and A1 provide easy access to Leeds, Harrogate, York, and beyond, while Leeds Grammar School lies just three miles away.
Nearby Collingham provides everyday amenities, while the market town of Wetherby offers a wider range of shopping, dining, and leisure facilities. For those travelling further afield, Leeds Bradford International Airport is only around 30 minutes by car.
With its prime location, planning approval in place, and breathtaking backdrop, this is a rare and exciting opportunity to create a bespoke family home in one of Yorkshire’s most desirable villages.
Brochures
Particulars- COUNCIL TAXA payment made to your local authority in order to pay for local services like schools, libraries, and refuse collection. The amount you pay depends on the value of the property.Read more about council Tax in our glossary page.
- Band: TBC
- PARKINGDetails of how and where vehicles can be parked, and any associated costs.Read more about parking in our glossary page.
- Ask agent
- GARDENA property has access to an outdoor space, which could be private or shared.
- Ask agent
- ACCESSIBILITYHow a property has been adapted to meet the needs of vulnerable or disabled individuals.Read more about accessibility in our glossary page.
- Ask agent
Energy performance certificate - ask agent
The Dell, Bardsey, LS17
Add an important place to see how long it'd take to get there from our property listings.
__mins driving to your place
Get an instant, personalised result:
- Show sellers you’re serious
- Secure viewings faster with agents
- No impact on your credit score
Your mortgage
Notes
Staying secure when looking for property
Ensure you're up to date with our latest advice on how to avoid fraud or scams when looking for property online.
Visit our security centre to find out moreDisclaimer - Property reference FUR240245. The information displayed about this property comprises a property advertisement. Rightmove.co.uk makes no warranty as to the accuracy or completeness of the advertisement or any linked or associated information, and Rightmove has no control over the content. This property advertisement does not constitute property particulars. The information is provided and maintained by Furnell Residential, Wetherby. Please contact the selling agent or developer directly to obtain any information which may be available under the terms of The Energy Performance of Buildings (Certificates and Inspections) (England and Wales) Regulations 2007 or the Home Report if in relation to a residential property in Scotland.
*This is the average speed from the provider with the fastest broadband package available at this postcode. The average speed displayed is based on the download speeds of at least 50% of customers at peak time (8pm to 10pm). Fibre/cable services at the postcode are subject to availability and may differ between properties within a postcode. Speeds can be affected by a range of technical and environmental factors. The speed at the property may be lower than that listed above. You can check the estimated speed and confirm availability to a property prior to purchasing on the broadband provider's website. Providers may increase charges. The information is provided and maintained by Decision Technologies Limited. **This is indicative only and based on a 2-person household with multiple devices and simultaneous usage. Broadband performance is affected by multiple factors including number of occupants and devices, simultaneous usage, router range etc. For more information speak to your broadband provider.
Map data ©OpenStreetMap contributors.





