
Taunton Road, Bourne, PE10

- PROPERTY TYPE
Semi-Detached
- BEDROOMS
3
- BATHROOMS
2
- SIZE
Ask agent
- TENUREDescribes how you own a property. There are different types of tenure - freehold, leasehold, and commonhold.Read more about tenure in our glossary page.
Freehold
Key features
- Semi Detached House
- Enclosed Garden
- En Suite to Master Bedroom
- Parking for Two Vehicles
Description
NO CHAIN. NEED A QUICK PURCHASE ? THESE VENDORS CAN MOVE QUICKLY . With off road parking to the front for two vehicles, this three bedroom semi detached home has a good size lounge with French doors opening onto rear garden, a master bedroom with en suite and is perfect for the young family. For further details, call the Briggs Team today.
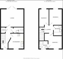
Entrance Hall
With stairs to first floor and cupboard beneath.
Cloakroom
Comprising low flush WC and wash hand basin.
Lounge
15’6 x 12’ (4.72m x 3.65m)
A spacious room with TV point, radiator, dining area and French doors opening to rear garden.
Kitchen
11’3 x 10’1 (3.43m x 3.07m)
Comprising wall and base units, built in oven with hob and extractor above; plumbing and space for washing machine and dishwasher, fridge space, sink unit, breakfast area, radiator and window to front aspect.
Landing
Bedroom One
11’1 x 9’10 (3.37m x 3.00m)
With fitted wardrobe, radiator, window to front aspect and door to
En Suite
Comprising shower cubicle, wash hand basin, low flush WC, radiator, wall tiling and window to front aspect.
Bedroom Two
10’11 x 8’8 (3.33m x 2.64m)
With radiator and window to rear aspect.
Bedroom Three
12’ max x 6’8 (3.65m x 2.03m)
With radiator and window to rear aspect.
Bathroom
Comprising panelled bath, wash hand basin, low flush WC, radiator and window to side aspect.
Outside
There are two parking spaces to the front of the property. The rear garden is enclosed by fencing and mainly laid to lawn with paving and shed.
Brochures
Brochure 1- COUNCIL TAXA payment made to your local authority in order to pay for local services like schools, libraries, and refuse collection. The amount you pay depends on the value of the property.Read more about council Tax in our glossary page.
- Ask agent
- PARKINGDetails of how and where vehicles can be parked, and any associated costs.Read more about parking in our glossary page.
- Yes
- GARDENA property has access to an outdoor space, which could be private or shared.
- Yes
- ACCESSIBILITYHow a property has been adapted to meet the needs of vulnerable or disabled individuals.Read more about accessibility in our glossary page.
- Ask agent
Energy performance certificate - ask agent
Taunton Road, Bourne, PE10
Add an important place to see how long it'd take to get there from our property listings.
__mins driving to your place
Get an instant, personalised result:
- Show sellers you’re serious
- Secure viewings faster with agents
- No impact on your credit score



Your mortgage
Notes
Staying secure when looking for property
Ensure you're up to date with our latest advice on how to avoid fraud or scams when looking for property online.
Visit our security centre to find out moreDisclaimer - Property reference 28129379. The information displayed about this property comprises a property advertisement. Rightmove.co.uk makes no warranty as to the accuracy or completeness of the advertisement or any linked or associated information, and Rightmove has no control over the content. This property advertisement does not constitute property particulars. The information is provided and maintained by Briggs Residential, Market Deeping. Please contact the selling agent or developer directly to obtain any information which may be available under the terms of The Energy Performance of Buildings (Certificates and Inspections) (England and Wales) Regulations 2007 or the Home Report if in relation to a residential property in Scotland.
*This is the average speed from the provider with the fastest broadband package available at this postcode. The average speed displayed is based on the download speeds of at least 50% of customers at peak time (8pm to 10pm). Fibre/cable services at the postcode are subject to availability and may differ between properties within a postcode. Speeds can be affected by a range of technical and environmental factors. The speed at the property may be lower than that listed above. You can check the estimated speed and confirm availability to a property prior to purchasing on the broadband provider's website. Providers may increase charges. The information is provided and maintained by Decision Technologies Limited. **This is indicative only and based on a 2-person household with multiple devices and simultaneous usage. Broadband performance is affected by multiple factors including number of occupants and devices, simultaneous usage, router range etc. For more information speak to your broadband provider.
Map data ©OpenStreetMap contributors.





