Overthorpe Road, Dewsbury, WF12
- SIZE
Ask agent
- SECTOR
Light industrial facility to lease
Lease details
- Lease available date:
- Now
- Lease type:
- Long term
- Furnish type:
- Unfurnished
Key features
- Freehold Roadside Garage/Industrial Property with large yard
- Development Opportunity
- Of interest to owner occupiers and investors
Description
GARAGE/INDUSTRIAL UNIT WITH PROMINENT ROADSIDE FRONTAGE AND LARGE YARD AREA A fantastic opportunity for an owner occupier or investor to purchase prominent roadside commercial unit which has been used as garage and body shop repair by the current owner. The building extends to approximately 2,350 sq ft (218.09 sq m) and sits on a site of approximately 0.35 acres. There is good parking to the front, side and rear of the property and offers a purchaser to continue using the premises in their current form or potential for a variety of uses including potential residential development. There has previously been a successful application for residential development which has now lapsed but subject to re-application could easily be achieved.
LOCATION
The property fronts Overthorpe Road, Thornhill Edge close to the villages amenities and sat within a predominantly residential area. Dewsbury, Wakefield and the M1 Motorway are all in easy reach.
PROPERTY
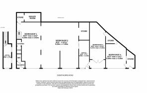
The property is a detached single storey unit currently operating as Garage, MOT centre and Body shop repair. There are 6 roller shutter doors giving access to 5 workshop bays and an office. There is also a small mezzanine with a further office and a ground floor W.C and tea point. The unit has a full MOT bay, car inspection pit and paint spray area. There is parking to the front, side and rear of the property. The rent will include all current garage equipment, an extensive itemised list of what is included is available upon application. The property has a gross internal area of 2,350 sq ft (218.09 sq m).
RENT
The property is available on a new full repairing and insuring lease for a term to be agreed at a quoting rent of £3,000pcm exclusive of rates and VAT. The Limited Company name is available subject to separate negotiation. The property excluding the contents is available to purchase at offers around £450,000.
INSURANCE
The Landlord insures the building and recharges the tenant the insurance premium.
RATABLE VALUE
We are verbally informed by the Local Authority that the property has a rateable value of £7,600.
VIEWINGS
For further information or to make an appointment to view please contact Gina Powell (gina. ) or Rebecca Blyth (Rebecca. ) on .
VAT
VAT is not applicable to the purchase price.
LEGAL FEES
Each party is responsible for their own legal fees incurred in the transaction.
Brochures
Overthorpe Road, Dewsbury, WF12
NEAREST STATIONS
Distances are straight line measurements from the centre of the postcode- Ravensthorpe Station1.3 miles
- Dewsbury Station1.7 miles
- Mirfield Station2.8 miles
Notes
Disclaimer - Property reference 19f19c5a-937b-4157-8c92-9e8943c0e62b. The information displayed about this property comprises a property advertisement. Rightmove.co.uk makes no warranty as to the accuracy or completeness of the advertisement or any linked or associated information, and Rightmove has no control over the content. This property advertisement does not constitute property particulars. The information is provided and maintained by Simon Blyth Estate Agents, Holmfirth. Please contact the selling agent or developer directly to obtain any information which may be available under the terms of The Energy Performance of Buildings (Certificates and Inspections) (England and Wales) Regulations 2007 or the Home Report if in relation to a residential property in Scotland.
Map data ©OpenStreetMap contributors.





