Skip to content
NEW HOME

Rhone Alps, Savoie, Aix-les-Bains, France

£248,207
€281,000
Leggett Immobilier, France
PROPERTY TYPE

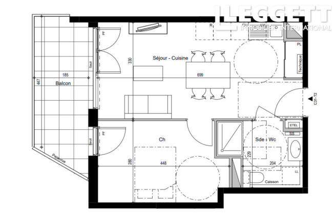
Apartment

BEDROOMS

1

BATHROOMS

1

SIZE

424 sq ft

39 sq m

Key features

  • Town property
  • New Build
  • Close to golf course
  • 50km or less to airport

Description

A31943MAA73 - All the apartments are finished with the following high standards:
Fully furnished and equipped apartments
Built in storage
Underground parking
Bike storage
Secure residence with video intercom

The Region:

A spa town renowned for its idyllic setting, Aix-Les-Bains is beautiful, charming and timeless. Bordered by the waters of Lac du Bourget, the town often referred to as the Riviera of the Alps has incredible assets to guarantee you an enchanting to guarantee you an enchanting future in one of the most sought-after areas in the Savoie.

Ideally located between Annecy and Chambéry, at the crossroads of the Lyon-Turin and Geneva-Grenoble transport routes, Aix-les-Bains is an attractive area with easy access and great transport links.

Steeped in Art and History, Aix-Les-Bains boasts a rich cultural and natural heritage. Aix-Les-Bains is also a great place to live, rest and relax. The town's tourist appeal is linked to the lake, making it possible to enjoy a wide range of water sports. Nearby, Mont Revard offers mountain bike trails, downhill and cross-country ski runs.

Transport/Access:

TGV Station – 3 minutes walk
Chambery Airport – 7.5km
Geneva Airport – 73km
Lyon Airport – 91km

The Development:

This brand new development is situated in the very heart of Aix-les-Bains. With its contemporary architecture, this project offers an ideal lifestyle, between the crystal clear waters of the Lac du Bourget and the surrounding mountains… Ideally situated, just a stone’s throw from all amenities and combines the perfect blend of environment and economic attractiveness.

LIST OF OPTIONS AVAILABLE:

These are the last remaining 1 bedroom apartments available in this popular new development.

Brochures

Brochure 1

Rhone Alps, Savoie, Aix-les-Bains, France

NEAREST AIRPORTS

Distances are straight line measurements
  • Chambéry(International)
    4.3 miles
  • Satolas(International)
    40.7 miles

Advice on buying French property

Learn everything you need to know to successfully find and buy a property in France.

About Leggett Immobilier, France

La Maison du Chapitre, 24340 La Rochebeaucourt, France

Leggett Immobilier is a family business that was started 20 years ago and founded on the genuine belief that French estate agency could be done better – today this still holds true. Indeed, this belief was validated last year when we were crowned "Best Estate Agency in France" at a prestigious awards ceremony in London.

All of our agents live and work in France and have excellent local knowledge, covering both their area and local property prices. Clients are given a single point of contact who is dedicated to helping them make the right decision and to be by their side throughout the purchase process. Our in-house contracts team are experienced in dealing with local notaires and have overseen the purchase of over €1bn of French property - they will ensure that the sale progresses smoothly and our fully bilingual team will guide you through all legal documentation.

With over 600 agents spread across the country we like to think that we are now the leading international estate agency in France, last year around one in ten of all UK buyers of French property trusted us to help them. However, the company’s size and success has not altered the fact that we are a family business who pride ourselves on professionalism and friendliness.

Local knowledge is invaluable when buying in a foreign country. Leggett provides this knowledge - nearly all of our agents have lived through a move themselves and have been trained to deal with any issue or question that might arise. This training includes a three day, residential, course, further "advanced" training and access to our head office team who keep abreast of all changes in French property law and legislation.

It is this, unique, “hand-holding” approach that has helped build the foundations of our company. No other agency in France takes such care of a client before, during and after a property is purchased.

The system for buying a property in France can be complex but is regarded as being one of the safest in the world – the French like "red tape" but not much surprises us now.

With over 20 years of experience, we have the knowledge to aid with legal matters, help with finance, and even ensure that you have all the essential services connected when you make the move to your new home.

Leggett Immobilier - local knowledge you can trust.

Notes

These notes are private, only you can see them.

This is a property advertisement provided and maintained by Leggett Immobilier, France (reference A31943MAA73) and does not constitute property particulars. Whilst we require advertisers to act with best practice and provide accurate information, we can only publish advertisements in good faith and have not verified any claims or statements or inspected any of the properties, locations or opportunities promoted. Rightmove does not own or control and is not responsible for the properties, opportunities, website content, products or services provided or promoted by third parties and makes no warranties or representations as to the accuracy, completeness, legality, performance or suitability of any of the foregoing. We therefore accept no liability arising from any reliance made by any reader or person to whom this information is made available to. You must perform your own research and seek independent professional advice before making any decision to purchase or invest in overseas property.

Email agent

Email agent