
5 bedroom semi-detached house for sale
Cottenham Park Road, Wimbledon, London, SW20

- PROPERTY TYPE
Semi-Detached
- BEDROOMS
5
- BATHROOMS
4
- SIZE
2,795 sq ft
260 sq m
- TENUREDescribes how you own a property. There are different types of tenure - freehold, leasehold, and commonhold.Read more about tenure in our glossary page.
Freehold
Key features
- Excellent location
- Newly built five bedroom house
- Four en suite bedrooms
- Wonderful open plan kitchen / dining / family space
- Cinema room
- Terrace
- Laundry room
- Landscaped garden
- EPC Rating = B
Description
Description
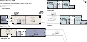
Impressive design and modern luxury are uniquely embodied in this spacious luxury semi-detached house. This family home enjoys an outstanding specification, crafted from a unique blend of handmade bricks, locally cut stone, metal alloy cladding and glazing. The house is contemporary in style and is arranged across four floors.
On the lower ground floor the property comprises an impressive entertainment/cinema space and a large open plan kitchen/dining room, with access to a large rear terrace and garden with impressive views of Cottenham Park. The garden is landscaped with outdoor lighting and artificial grass.
On the upper ground floor is a luxurious principal suite, with a generous principal bedroom and wonderful terraced balcony overlooking the garden. There is also a laundry room on this floor.
On the first and second floors, there are four further bedroom suites, each with a contemporary en suite bath/shower room.
Herringbone flooring is featured throughout.
Designed as a low energy home, this property features integrated solar PV panels, an air source heat pump, and underfloor heating throughout, ensuring maximum comfort while being environmentally conscious.
Driveway parking for one car.
10 year build warranty - Advantage
Location
41A Cottenham Park Road is conveniently located within 1000m of Raynes Park rail station and around 1500m from Wimbledon Village.
The property is adjacent to and overlooks Holland Gardens, with its wide lawns and tennis courts. It has rear access to the Gardens. Cottenham Park is around 800m away and offers six tennis courts and a playground area surrounding a cricket pitch.
Raynes Park station provides a regular link to central London with services every five minutes during peak hours taking 18-20 minutes. The 200 bus route allows access to Raynes Park or Wimbledon Village. Locally are a number of sought after schools including Hollymount Primary School and King's College School both within 800m. Wimbledon Common with its 1,200 acres of open space is 950m away.
Source of times
Source of distances Google Pedometer
All measurements are approximate
Square Footage: 2,795 sq ft
Brochures
Web DetailsParticulars- COUNCIL TAXA payment made to your local authority in order to pay for local services like schools, libraries, and refuse collection. The amount you pay depends on the value of the property.Read more about council Tax in our glossary page.
- Band: H
- PARKINGDetails of how and where vehicles can be parked, and any associated costs.Read more about parking in our glossary page.
- Yes
- GARDENA property has access to an outdoor space, which could be private or shared.
- Yes
- ACCESSIBILITYHow a property has been adapted to meet the needs of vulnerable or disabled individuals.Read more about accessibility in our glossary page.
- Ask agent
Cottenham Park Road, Wimbledon, London, SW20
Add an important place to see how long it'd take to get there from our property listings.
__mins driving to your place
Get an instant, personalised result:
- Show sellers you’re serious
- Secure viewings faster with agents
- No impact on your credit score
Your mortgage
Notes
Staying secure when looking for property
Ensure you're up to date with our latest advice on how to avoid fraud or scams when looking for property online.
Visit our security centre to find out moreDisclaimer - Property reference WMS220031. The information displayed about this property comprises a property advertisement. Rightmove.co.uk makes no warranty as to the accuracy or completeness of the advertisement or any linked or associated information, and Rightmove has no control over the content. This property advertisement does not constitute property particulars. The information is provided and maintained by Savills, Wimbledon. Please contact the selling agent or developer directly to obtain any information which may be available under the terms of The Energy Performance of Buildings (Certificates and Inspections) (England and Wales) Regulations 2007 or the Home Report if in relation to a residential property in Scotland.
*This is the average speed from the provider with the fastest broadband package available at this postcode. The average speed displayed is based on the download speeds of at least 50% of customers at peak time (8pm to 10pm). Fibre/cable services at the postcode are subject to availability and may differ between properties within a postcode. Speeds can be affected by a range of technical and environmental factors. The speed at the property may be lower than that listed above. You can check the estimated speed and confirm availability to a property prior to purchasing on the broadband provider's website. Providers may increase charges. The information is provided and maintained by Decision Technologies Limited. **This is indicative only and based on a 2-person household with multiple devices and simultaneous usage. Broadband performance is affected by multiple factors including number of occupants and devices, simultaneous usage, router range etc. For more information speak to your broadband provider.
Map data ©OpenStreetMap contributors.





