
Silverstone Drive, Manchester

- PROPERTY TYPE
Semi-Detached
- BEDROOMS
4
- BATHROOMS
1
- SIZE
991 sq ft
92 sq m
Key features
- FOUR BEDROOMS
- SEMI DETACHED
- DOUBLE DRIVEWAY
- CUL-DE-SAC
- LOUNGE/DINER
- KITCHEN/DINER
- FOUR BEDROOM DOWNSTAIRS/2ND RECEPTION ROOM
- TWO LEVELLED REAR GARDEN
Description
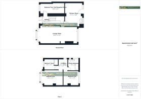
Upon entrance the property comprises of entrance hallway with under stairs storage, lounge/diner, kitchen/diner, bedroom four/2nd reception room downstairs.
To the first floor three bedrooms and family bathroom. Warmed by gas central heating and UPVC double glazing throughout. Externally presents a paved double driveway and a rear split level garden.
Ideally located for easy access to transport links into Manchester City Centre as well as bus routes and other amenities including local shops and schools.
Entrance Hallway - 4.27m x 1.80m (14'0 x 5'11) - Laminate flooring, double doors, radiator, under stairs storage cupboard.
Lounge/Diner - 7.67m x 3.45m (25'2 x 11'4) - Front facing into bay and rear facing, two radiators, feature panel wall, wall lights, neutral decor.
Kitchen/Diner - 3.40m x 4.47m (11'2 x 14'8) - Rear facing, two windows, range of fitted wall and base units in white finish with complimentary white worktops. Inset sink and drainer with mixer taps over, built in electric oven and gas hob with extractor hood over, tiled splashback, laminate flooring, electric radiator, spotlights, velux window, partly tiled walls, neutral decor, door leading to rear garden.
Bedroom Four/2nd Reception Room - 4.50m x 2.01m (14'9 x 6'7) - Front facing, laminate flooring, neutral decor.
Stairs And Landing - Stairs leading to all first floor rooms, carpeted, window to top of stairs.
Bedroom One - 4.42m x 3.07m (14'6 x 10'1) - Front facing into bay, laminate flooring, radiator, built in wardrobes, neutral decor.
Bedroom Two - 3.15m x 2.97m (10'4 x 9'9) - Rear facing, laminate flooring, radiator, built in wardrobes, neutral decor.
Bedroom Three - 1.98m x 2.18m (6'6 x 7'2) - Front facing, tiled flooring, feature panelled wall, storage cupboard, neutral decor.
Family Bathroom - 2.26m x 2.26m (7'5 x 7'5) - Side facing, two windows, three piece bathroom suite in white comprising vanity sink and toilet, shower over P shaped bath, heated chrome towel rail, tiled flooring, spotlights, partly panelled walls around bath and shower, partly tiled walls, neutral decor.
External - At the front of the property there is a double paved driveway and a two levelled rear garden with artificial grassed area.
Tenure - We have been advised by the vendors that the property is Leasehold and await the Lease details and Ground Rent of £8.00 per annum.
Stamp Duty - Residential property rates
You usually pay Stamp Duty Land Tax (SDLT) on increasing portions of the property price when you buy residential property, for example a house or flat.
The amount you pay depends on:
• when you bought the property
• how much you paid for it
• whether you’re eligible for relief or an exemption
Rates for a single property
You pay SDLT at these rates if, after buying the property, it is the only residential property you own.
You will usually pay 5% on top of these rates if you own another residential property.
Rates from 1 April 2025
Property or lease premium or transfer value SDLT rate
Up to £125,000 Zero
The next £125,000 (the portion from £125,001 to £250,000) 2%
The next £675,000 (the portion from £250,001 to £925,000) 5%
The next £575,000 (the portion from £925,001 to £1.5 million) 10%
The remaining amount (the portion above £1.5 million) 12%
Example
In April 2025 you buy a house for £295,000. The SDLT you owe will be calculated as follows:
• 0% on the first £125,000 = £0
• 2% on the second £125,000 = £2,500
• 5% on the final £45,000 = £2,250
• total SDLT = £4,750
Brochures
Silverstone Drive, ManchesterMcdermott & Co property link- COUNCIL TAXA payment made to your local authority in order to pay for local services like schools, libraries, and refuse collection. The amount you pay depends on the value of the property.Read more about council Tax in our glossary page.
- Band: B
- PARKINGDetails of how and where vehicles can be parked, and any associated costs.Read more about parking in our glossary page.
- Yes
- GARDENA property has access to an outdoor space, which could be private or shared.
- Yes
- ACCESSIBILITYHow a property has been adapted to meet the needs of vulnerable or disabled individuals.Read more about accessibility in our glossary page.
- Ask agent
Silverstone Drive, Manchester
Add an important place to see how long it'd take to get there from our property listings.
__mins driving to your place
Get an instant, personalised result:
- Show sellers you’re serious
- Secure viewings faster with agents
- No impact on your credit score
Your mortgage
Notes
Staying secure when looking for property
Ensure you're up to date with our latest advice on how to avoid fraud or scams when looking for property online.
Visit our security centre to find out moreDisclaimer - Property reference 33356087. The information displayed about this property comprises a property advertisement. Rightmove.co.uk makes no warranty as to the accuracy or completeness of the advertisement or any linked or associated information, and Rightmove has no control over the content. This property advertisement does not constitute property particulars. The information is provided and maintained by Mcdermott & Co Property Agents, Failsworth. Please contact the selling agent or developer directly to obtain any information which may be available under the terms of The Energy Performance of Buildings (Certificates and Inspections) (England and Wales) Regulations 2007 or the Home Report if in relation to a residential property in Scotland.
*This is the average speed from the provider with the fastest broadband package available at this postcode. The average speed displayed is based on the download speeds of at least 50% of customers at peak time (8pm to 10pm). Fibre/cable services at the postcode are subject to availability and may differ between properties within a postcode. Speeds can be affected by a range of technical and environmental factors. The speed at the property may be lower than that listed above. You can check the estimated speed and confirm availability to a property prior to purchasing on the broadband provider's website. Providers may increase charges. The information is provided and maintained by Decision Technologies Limited. **This is indicative only and based on a 2-person household with multiple devices and simultaneous usage. Broadband performance is affected by multiple factors including number of occupants and devices, simultaneous usage, router range etc. For more information speak to your broadband provider.
Map data ©OpenStreetMap contributors.





