Strategic Rural Portfolio
- SIZE
Ask agent
- SECTOR
Land for sale
Description
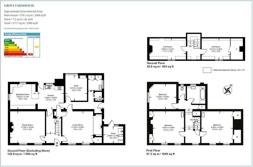
In all approximately 208.70 hectares (515.70 acres)
An investment portfolio with potential development opportunities (subject to planning permission)
Including:
Hulcott Estate, Aylesbury, Buckinghamshire
North Park Farm, Godstone, Surrey
Deddington Estate, Banbury, Oxfordshire
Restrictive Covenant over Land at Kelvedon, Essex
Lot 1: The Hulcott Estate
Aylesbury, Buckinghamshire
Approximately 346.80 acres (140.35 hectares)
THIS ESTATE IS STRATEGICALLY LOCATED WITH
A DIVERSE MIX OF POTENTIAL DEVELOPMENT
OPPORTUNITIES.
The Estate comprises agricultural land, a vacant
farmhouse, a range of traditional and modern farm
buildings with development potential (subject to Planning
Permission), together with farmland strategically located
close to Aylesbury.
Aylesbury 3 miles | Oxford 22 miles | Northampton 30 miles
London 35 miles (via train from Aylesbury to London Marylebone
1hr) (All distances and times are approximate).
Lot 2: Land at North Park Farm
Godstone, Surrey
Approximately 133.63 acres (54.08 hectares)
THIS HOLDING PROVIDES AN OPPORTUNITY
TO PURCHASE LAND WITH DEVELOPMENT
POTENTIAL AND A STRONG RENTAL INCOME.
The majority of the land is south of the M25 with easy
access to Junction 6. The land adjacent to Godstone has
development potential (subject to Planning Permission).
The holding benefits from income from an existing
quarry haul road and other land that may be suitable for
Biodiversity Net Gain opportunities.
Oxted 3 miles | Gatwick 8 miles | London 17 miles
(via train from Oxted Station to London Victoria 30 mins)
(All distances and times are approximate).
Lot 3: The Deddington Estate
Banbury, Oxfordshire
Approximately 35.26 acres (14.27 hectares)
A LAND HOLDING WITH STRATEGIC POTENTIAL
FOR RESIDENTIAL DEVELOPMENT (SUBJECT TO
PLANNING PERMISSION).
This property is a selection of land parcels strategically
located in and around the settlements of Deddington and
Hempton. It also includes two residential properties.
Banbury 5 miles | Bicester 9 miles | Oxford 16 miles
London 60 miles (via train from Banbury to London Marylebone
in about an hour) (All distances and times are approximate).
Lot 4: A Restrictive Covenant over land at Ewell Hall Farm, Kelvedon, Essex
THE BENEFIT OF A RESTRICTIVE COVENANT IN RESPECT OF DEVELOPMENT OVER LAND CURRENTLY UNDER A PROMOTION AGREEMENT.
In all approximately 515.70 acres (208.70 hectares) of Freehold land
For Sale by Private Treaty as a Whole or in 4 Lots.
The land is mainly let on short term Farm Business Tenancies.
Energy Performance Certificates
Photo 28Photo 30Photo 24Brochures
Strategic Rural Portfolio
NEAREST STATIONS
Distances are straight line measurements from the centre of the postcode- Kings Sutton Station3.4 miles
- Heyford Station4.4 miles
Notes
Disclaimer - Property reference 443162FH. The information displayed about this property comprises a property advertisement. Rightmove.co.uk makes no warranty as to the accuracy or completeness of the advertisement or any linked or associated information, and Rightmove has no control over the content. This property advertisement does not constitute property particulars. The information is provided and maintained by Brown & Co, Banbury. Please contact the selling agent or developer directly to obtain any information which may be available under the terms of The Energy Performance of Buildings (Certificates and Inspections) (England and Wales) Regulations 2007 or the Home Report if in relation to a residential property in Scotland.
Map data ©OpenStreetMap contributors.





