
North Street, Tunbridge Wells, Kent, TN2

- PROPERTY TYPE
Maisonette
- BEDROOMS
4
- BATHROOMS
4
- SIZE
Ask agent
Description
The property is situated in a popular and convenient residential area of Tunbridge Wells, benefiting from easy access to the A21 and within walking distance of the Tunbridge Wells train station, a variety of convenience stores restaurants and St James' Primary School. North Farm Retail Park and Knights Park are also within easy reach featuring many retail stores, an Odeon Cinema Complex and a Bowlplex. Tunbridge Wells has an excellent selection of well-regarded state and independent schools for all ages. There is a plethora of open green spaces and a number of parks, including the well-known Dunorlan Park. Royal Victoria is approximately 1.5 miles away and offers a range of both independent retailers and major brands, restaurants, bars, cafes, churches, theatres. To the south of the town centre lies The Pantiles which is rich in history and often hosts fairs and festivals.
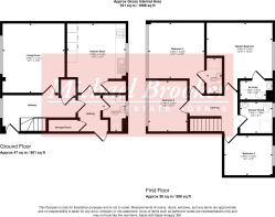
This generously proportioned four-bedroom maisonette is accessed via a communal entrance and situated on the second floor, with accommodation arranged over two levels. The entrance floor features a spacious hallway, a lounge with far-reaching views, a spacious kitchen with room for a dining table, a shower room, and access to a shared balcony. Upstairs, there are four good size bedrooms—two of which have en- suite shower rooms—alongside an additional family bathroom. The property offers ample storage, exclusive use of an outdoor shed, and access to communal gardens and residents’ parking.
FRONT DOOR
SPACIOUS ENTRANCE HALLWAY: Leads through to entrance hallway. Double glazed window with aspect to the front. Two storage cupboards. Stairs lead to next level. Further inner hallway with doors to kitchen, shower room, shared balcony, deep understairs storage cupboard (currently housing tumble dryer and consumer unit).
LOUNGE: Double glazed window with far reaching views to front. Radiator.
Generous sized KITCHEN with space for dining room table
Large double glazed window. A range of wall, base and drawer units with laminate worksurface over. Stainless steel sink. Eye level electric oven and gas hob. Space for fridge freezer. Space for under counter fridge. Door to cupboard housing wall mounted boiler for hot water and central heating. Gas meter. Vinyl floor.
SHOWER ROOM: Opaque double glazed window. Fully enclosed shower cubicle with chrome shower over. Low flush w.c., sink with vanity cupboard beneath. Chrome ladder style towel rail. Vinyl floor.
STAIRS TO UPPER FLOOR OF FLAT
Landing with loft access.
BEDROOM: Double glazed window. Radiator.
MASTER BEDROOM: Double glazed window. Radiator. Door through to
EN-SUITE: Enclosed shower cubicle with chrome shower over. Low flush corner w.c., pedestal wash hand basin. Vinyl flooring. Chrome ladder style towel radiator.
BEDROOM 2: Double glazed window to front. Radiator. Door through to
EN-SUITE: Fully enclosed shower cubicle with chrome shower over. Sink with vanity cupboard beneath. Low flush w.c. Chrome ladder style radiator.
BEDROOM: Double glazed window to front. Built in bed. Radiator.
BATHROOM: Opaque double glazed window. Fully enclosed shower cubicle with chrome shower over. Sink with vanity cupboard beneath. Low flush w.c. Chrome ladder style radiator. Shaver point. Vinyl flooring
OUTSIDE: There is a storage shed for exclusive use of the flat in a communal area to the rear of the property. Communal garden to the front of the block. Residents parking area.
Length of Lease: 92 years remaining
Service Charge: Propotionally split on an as and when basis
Ground Rent: £10 per annum
- COUNCIL TAXA payment made to your local authority in order to pay for local services like schools, libraries, and refuse collection. The amount you pay depends on the value of the property.Read more about council Tax in our glossary page.
- Band: C
- PARKINGDetails of how and where vehicles can be parked, and any associated costs.Read more about parking in our glossary page.
- Residents
- GARDENA property has access to an outdoor space, which could be private or shared.
- Ask agent
- ACCESSIBILITYHow a property has been adapted to meet the needs of vulnerable or disabled individuals.Read more about accessibility in our glossary page.
- Ask agent
North Street, Tunbridge Wells, Kent, TN2
Add an important place to see how long it'd take to get there from our property listings.
__mins driving to your place
Get an instant, personalised result:
- Show sellers you’re serious
- Secure viewings faster with agents
- No impact on your credit score
Your mortgage
Notes
Staying secure when looking for property
Ensure you're up to date with our latest advice on how to avoid fraud or scams when looking for property online.
Visit our security centre to find out moreDisclaimer - Property reference GMC240150. The information displayed about this property comprises a property advertisement. Rightmove.co.uk makes no warranty as to the accuracy or completeness of the advertisement or any linked or associated information, and Rightmove has no control over the content. This property advertisement does not constitute property particulars. The information is provided and maintained by Michael Brooker, Crowborough. Please contact the selling agent or developer directly to obtain any information which may be available under the terms of The Energy Performance of Buildings (Certificates and Inspections) (England and Wales) Regulations 2007 or the Home Report if in relation to a residential property in Scotland.
*This is the average speed from the provider with the fastest broadband package available at this postcode. The average speed displayed is based on the download speeds of at least 50% of customers at peak time (8pm to 10pm). Fibre/cable services at the postcode are subject to availability and may differ between properties within a postcode. Speeds can be affected by a range of technical and environmental factors. The speed at the property may be lower than that listed above. You can check the estimated speed and confirm availability to a property prior to purchasing on the broadband provider's website. Providers may increase charges. The information is provided and maintained by Decision Technologies Limited. **This is indicative only and based on a 2-person household with multiple devices and simultaneous usage. Broadband performance is affected by multiple factors including number of occupants and devices, simultaneous usage, router range etc. For more information speak to your broadband provider.
Map data ©OpenStreetMap contributors.








